
A+A House
A+A House
Dva Arhitekta

YEAR
2012
LOCATION
Zagreb, Croatia
TYPE
Residential › Private House
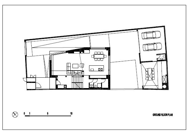
The situation found on the site was a semi-detached house, a substitute half was to be designed.

The increase in surface area was possible, but in respect for the structure and rhythm of the neighbourhood it was decided to keep the existing building outline, though the assignment programme was substantially wider.
The new house follows the neighbouring one at the point of contact, but further along it expands, most obviously on the roof.
The roof dormer, an element widely used in the neighbourhood, is used here too to get additional space under the roof.
Discontinuity of the house is alleviated by perpendicular raster of the cladding panels, into which the openings fit.











