YEAR
2016
LOCATION
Balatongyörök, Hungary
TYPE
Residential › Private House
The building site is located halfway between the traditional village centre and the "used to be" traditional vineyard area of Balatongyörök, Hungary. Currently this hillside is almost empty and the property is involuntarilly becoming a focal point of the surroundings.
"We had a chance to create a house that could send a message to the future investors of the area.Whisper something about simplicity, calmness and local values." - Attila Béres says.
The form Béres Architects created has links to past and future.From a distance it reads as a structure that has been there for a long time.
"The proportions, the scale and the white colour fits the traditional routines but as you step closer and closer you'll definitely realize this is something new."All the sharp edges, the carefully detailed corners make the house feel contemporary, a product of our days.
Besides it's strict geometry and spatial layout the house has a playful and friendly attitude. "There is a hidden smile behind the staggered window mullions." - explains the architect.
The way the house turns towards the nearby bay of lake Balaton and catches the view of the old chapel on St Michael's hill bends the rigid rules of minimalist architecture.
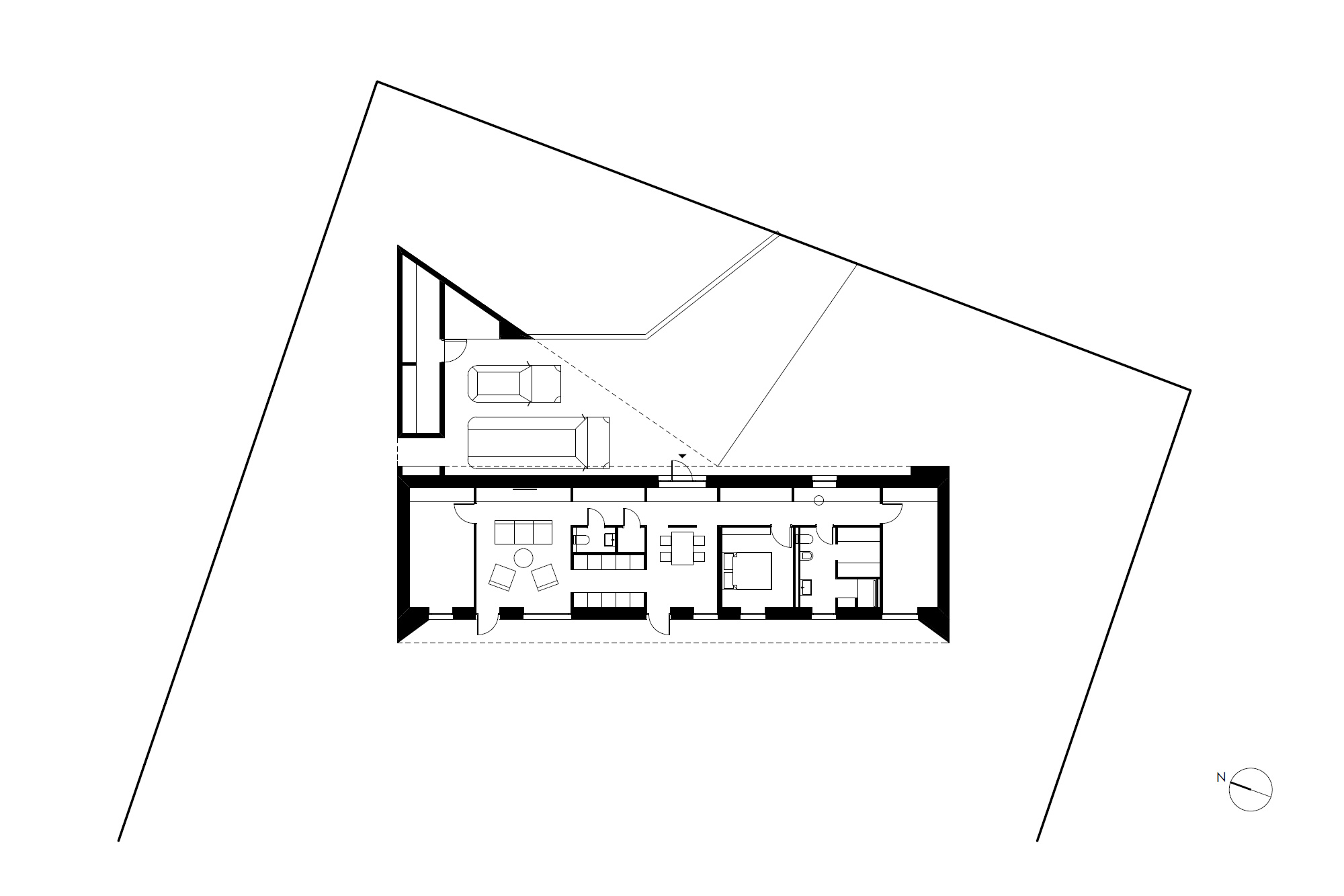
The floor plan of the home tells the story of the owners. Small and cozy spaces for two. For two who are used to spend several months a year in a caravan car.
A triangular carport for a regular and an irregular vehicle. A guest room for rare visitors and a workshop for endless creativity.
Keeping a house small is the first step on the way of getting environmentally friendly. It is a must. All the additional techniques and technology is just the icing on the cake.
Triple glazed windows, heat recovery ventilation, passive house standard insulation, details without cold bridges... just a few examples that makes it far more efficent and frugal than the average.


















