
Social Housing - Beckmanngasse
ARCHITECTS
Nerma Linsberger Ztgmbh
PHOTOS
Andreas Buchberger , Joma Properties Ltd
STATUS
Built
BUDGET
$1m - 5m
AREA
10,000 Sqft - 25,000 Sqft
YEAR
2014
LOCATION
Vienna, Austria
TYPE
Residential › Multi Unit Housing
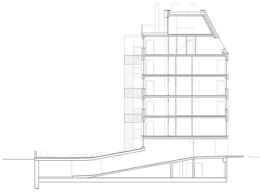
A spacious open entranceway on the ground floor already affords views of the green courtyard from the street.
There is a room for bicycles and strollers right on the ground floor, with natural light.
As both faÁades receive almost the same quality of light and sun, the loggias and living quarters are arranged alternately.
The access stairs, open toward the courtyard, promote communication between residents, and the long landings can also be used as shared balconies.
The apartments are laid out as lofts with a central plumbing core, offering different options for the arrangement of rooms and for varying lifestyles and degrees of openness.
The courtyard is designed to ensure residents a lasting enhancement to quality of life and, in conjunction with the private balconies, lively use as an extra green space.










