
Residential Building In Bucharest, Demosthene 29
YEAR
2015
LOCATION
Bucharest, Romania
TYPE
Residential › Multi Unit Housing
The site is located on a quiet street with old houses, tall trees, lime and honeysuckle perfume, not far from Cotroceni Palace. The rear limit of the property is south and is bordered by a park with tall trees showing the silhouette of the Military Academy.
The project is an attempt to address issues that are important to us: how can we compensate (at a small scale) the increasing shortage of green areas in Bucharest and the relationship between the interior/private space and the exterior/collective space.
We tried to keep the building typologically and morphologically true to the surrounding space: residential neighborhood characterized by small streets with narrow plots.
The aim of the project was an "alive" house able to offer visual, tactile and olfactory sensations, with garden - terraces and "tree tenants", with trellises for climbing plants and supports for caprifolium flowers.
In time, all the above might form "live bio-skin structures", acting as cooling devices.
The passage of outer space / public city space and interior / personal space is the architectural filter of the building.
Terraces are precious elements that mediate and articulate the interaction between the collective space and singular space.
The architecture reflects the inner life which evolves over time depending on how it is inhabited by the patina of materials and plant growth. It contains promises and uncertainties.
The materials that were used for the construction are the ingredients that made the concept come to life.
The use of materials becomes a "sincere" expression that does not hide imperfections and exposes the robustness of construction stages - exposed concrete, weldings, assemblage of metals and glass.
The result speaks through contrasts between materials, with reflecting lights and shadows that depend on the season and moment of the day.
Wood is used as an "alive" material with special sensitivity, tactile properties, able to "attract" and induce a particular state. Its location is chosen to allow closeness, direct touch.
Therefore the facade in the terraces area has vertical elements fully made of oil treated wood. It contributes to the general composition of the house, yet it is accessible directly and at close range.
Wooden ceilings are very visible from the street and very pleasant from the terraces, framed by edges of black metal plates.
The wood and metal plates are carefully installed with grooves on walls, ceilings and decks allowing ventilation and dimension changes due to humidity and temperature variations.
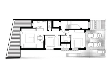
The 4 level building has one apartment per floor and a basement with an English courtyard. This building replaced an old building without architectural value and with serious structural problems.
The difficult terrain - with a high water level and three active springs discovered during works - required controlled dismantling operations, consolidation and waterproofing the enclosure.
From start to finish (1 year) the construction was supervised and managed in all phases directly by the architects.























