ESW Creative Laboratories
AREA
25,000 sqft - 100,000 sqft
BUDGET
$5M - 10M
YEAR
2014
LOCATION
Hawthornvale, Edinburgh, United Kingdom
TYPE
Commercial › Office Cultural › Cultural Center Sculpture Industrial › Laboratory
Edinburgh Sculpture Workshop offers a base for artists providing low cost studios, exhibition space and workshops.Having been based on Hawthornvale in Newhaven for more than 20 years, being housed until recently in a draughty old railway shed, ESW began a campaign to raise funds for a new facility to better suit the needs of the sculptors and artists.
With significant contributions from Creative Scotland, Lottery Funding and a land gift from City of Edinburgh Council work could finally begin.
PHASE 1: BILL SCOTT SCULPTURE CENTRE
The new sculpture centre sits perched on the South side of Hawthornvale and straddles the embankment of the disused railway cutting, now a cycle path, adjacent to the site of the old railway shed which allowed a smooth phasing between buildings for the artists.
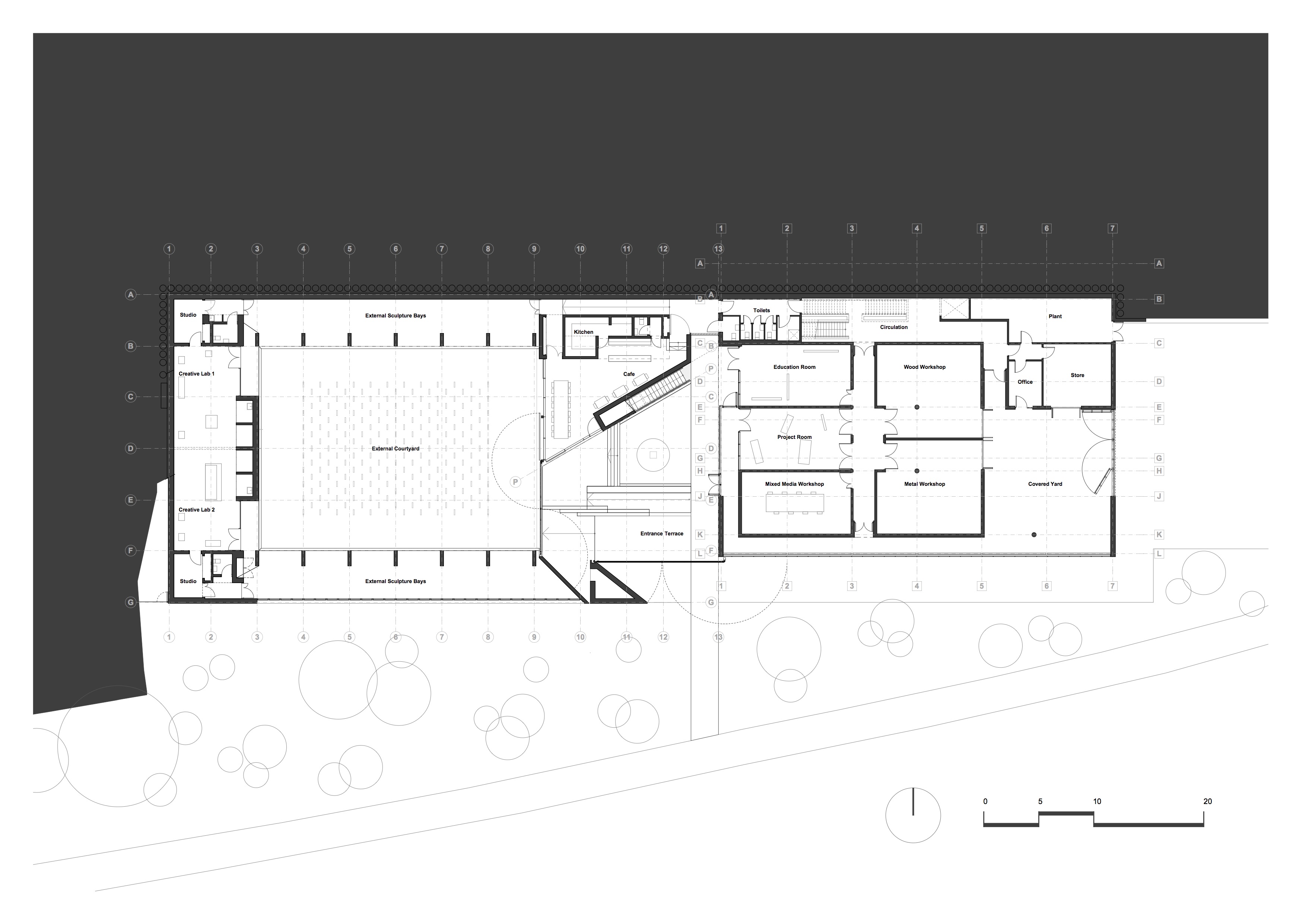
This building consists of 30 artists studios, large workshops for wood, metal, plaster and mixed media gathered around a covered external yard, an education space, project room, administrative offices, meeting rooms and two new self serviced apartments for visiting lecturers and artists in residence.
The workshops are located at ground level, within the cutting, for discreet and easy servicing and keeping the more industrial activities away from the residential street.
These workshops open out onto the yard, a covered external workspace wrapped in Orsogril screens which provides glimpses out to the cycle path whilst obliquely screening the facilities.
Robust, flexible and economical industrial construction methods were employed to allow the internal spaces to be adapted to suit the future needs of the building users.
During the construction of Phase 1 Foundation Scotland launched a competition on behalf of an anonymous donor for a £3m prize to an arts organisation in Edinburgh for the advancement of arts in Scotland.
ESW and SHA began developing proposals for a second building providing spaces for research, cross disciplinary activities and public engagement - a cultural hub - with this specific funding in mind. The team won the competition prize in 2010, judged by Izi Metzstein, Lord William Prosser, Sir Charles McKean and Colin Liddell.
PHASE 2: CREATIVE LABORATORIES
The buildings are arranged around a new public arena, purposely complementing the adjacent Workshop facilities and embedded within the railway cutting, creating opportunities to view down into the courtyard from the street.
A new public space, promoting art in the city of Edinburgh, allows for the flourishing and exposition of the process and work produced by ESW and its associated artists on a local, national and international level.
An architectural promenade surrounds the outdoor arena, linking a series of spaces with different spatial qualities.The building provides a range of low maintenance internal and external environments, from small to large scale for events and the production and exhibition of work.
These spaces are predominantly clad in brick - a robust low maintenance material complementing the proposed Workshop whilst echoing the industrial heritage of Hawthornvale.
The new structure is offset from the cycle path, maintaining a band of mature trees and vegetation around the perimeter, with a stepped route between the Workshop and Creative Laboratories providing access between Hawthornvale and the cycle path, from which a new cafe space offers visitors, passersby and artists alike a place to sit, mix and meet.
A 28m tall campanile completes the project, acting both as a gateway to the facility and as a beacon visible to the wider city beyond.





























