House Echeverria
LOCATION
Buenos Aires, Argentina
TYPE
Residential › Private House
The immediate environment is characterized by the existence of different architectural types.
We can find ground floor houses, sports centers and ten floor buildings.
This shows the different legislations this area went through and the luck of comprehension in this sense.
The volume is defined by the site size and a figure inscribed in the building regulations . This gave as a bigger approximation to the scale.
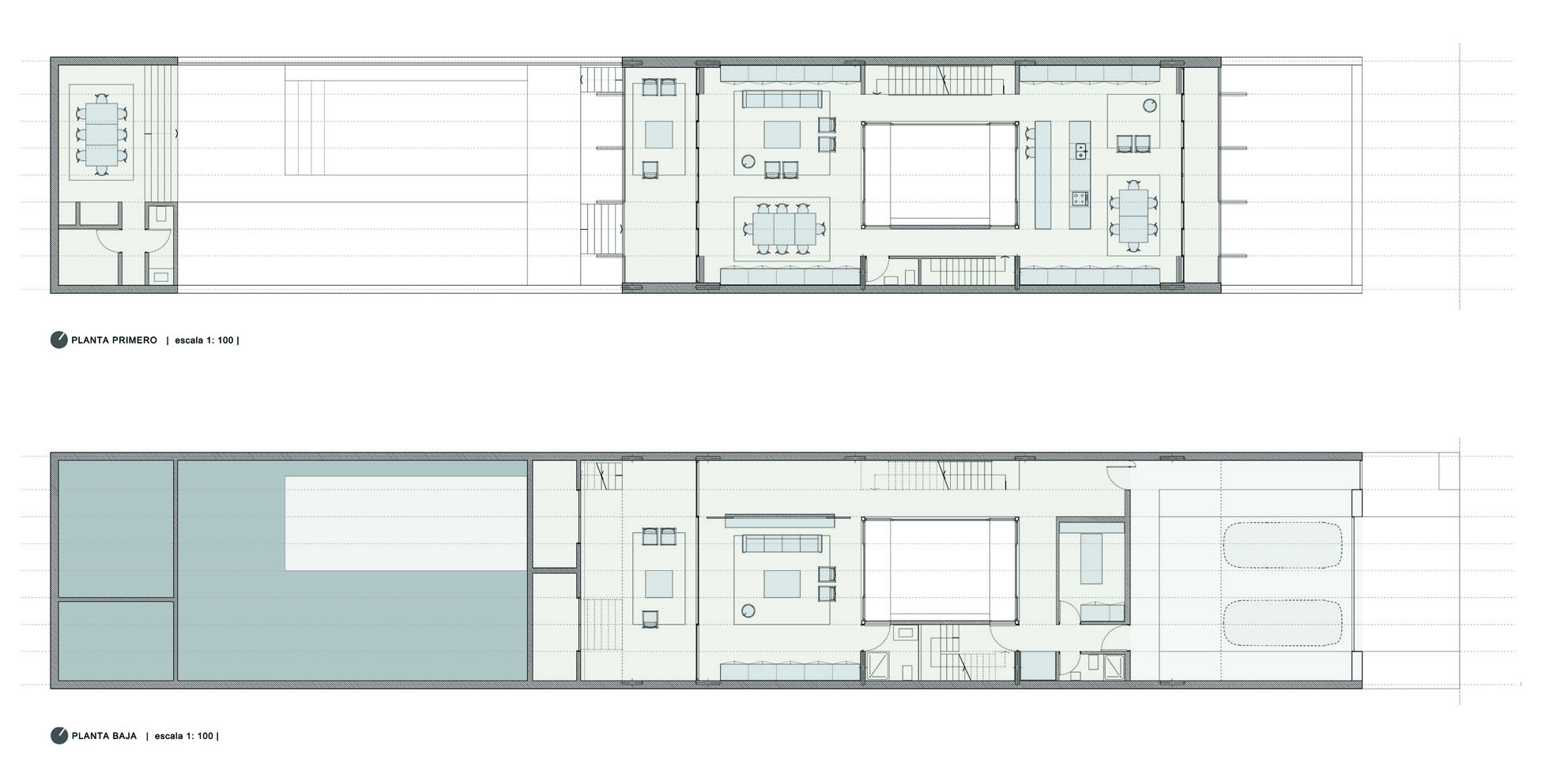
Our aim was explore the different programmatic relationships, taking forward public, private and exterior, giving as a result a great continuity of space.
The amplitude and relationship between the different spaces are achieved through the height between the floors, the place occupied by the patio and the decisión of releasing both fronts, generating spaces half covered in the exterior, proposing different scales in both fronts and enhancing the relationship towards the interior of the square.
The materiality is used as the expression of the most useful components: concrete, steel and glass. The concrete is used in its maximum dimension without using any intermediate support.
The balconies have great dimension. Two vertical and adjustable enclosures allow the handling of light and privacy.
The same treatment in both glass and steel facades give the house elegance, sobriety and beauty.














