Casa Mirasoles
YEAR
2015
LOCATION
San Isidro, Argentina
CATEGORY
Residential › Private House
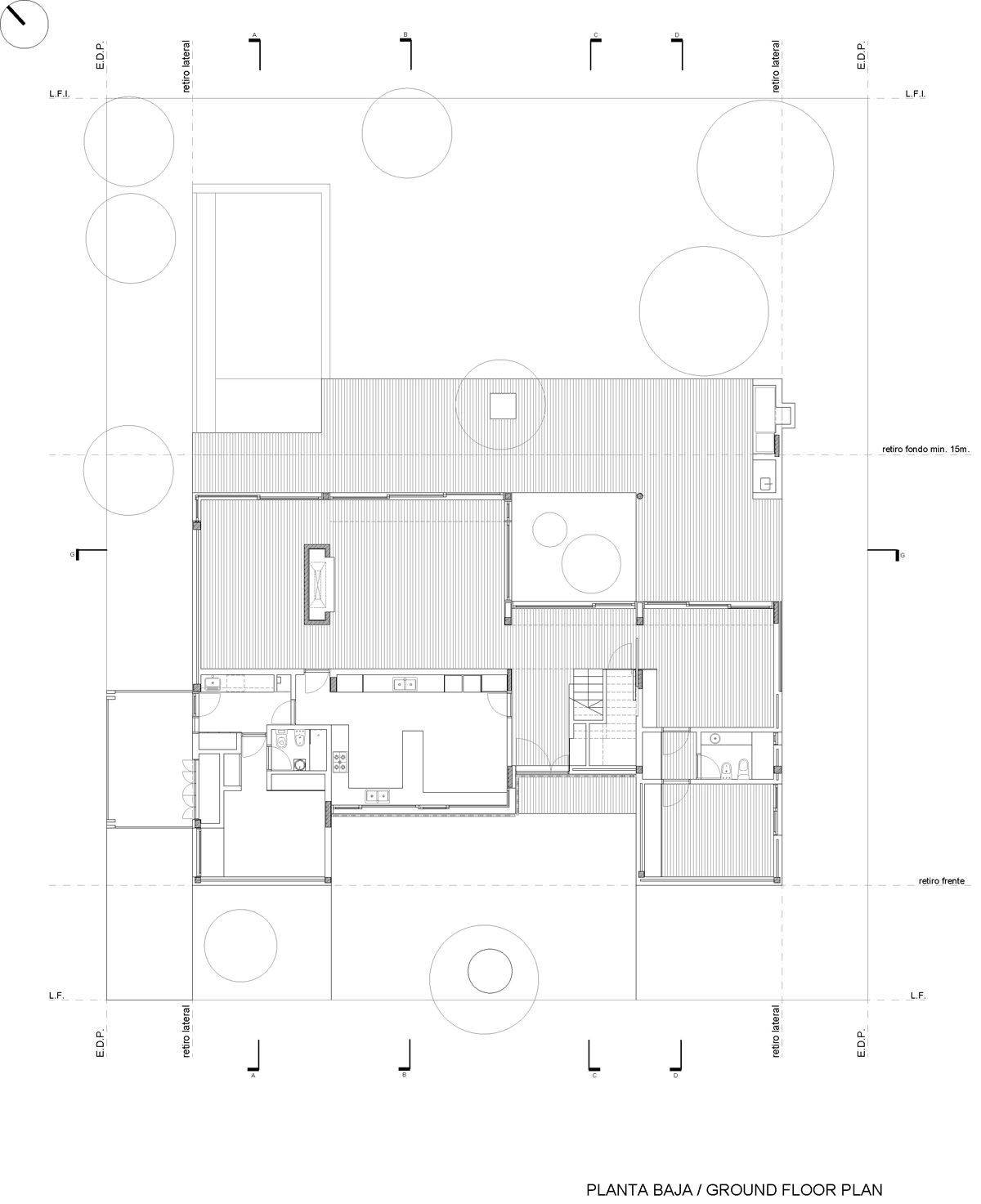
Un casa para una familia de padres jóvenes y 5 hijos de 11 a 4 años. Ubicada en los suburbios de la provincia de Buenos Aires en un típico barrio cerrado en un lote de 26mts de frente por 30mts de fondo.
La casa ocupa lo totalidad del área construible, quedando los límites de la casa muy cercanos al perímetro del lote.
Se buscó dar respuesta a esta situación dando privacidad al frente y laterales en relación a la proximidad de la calle y vecinos y una estrecha vinculación y relación con el jardín posterior y su vegetación.
En la planta baja un vidrio de piso a techo recorre la totalidad de la fachada posterior, produce un quiebre que incorpora un Patio verde en el centro de la casa que se relaciona en horizontal y vertical articulando los espacios principales.
Una doble altura y la escalera acompañan uno de sus lados, enriqueciendo el recorrido.
La posición estratégica de los tres elementos naturales, agua, patio y jardín de manera triangular generan siempre relaciones visuales, lumínicas y aromáticas, variadas para cada espacio.
La idea de continuidad exterior e interior se refuerza con simples operaciones de arquitectura: 1. espacios semi cubiertos de carácter transitivos que atenúan la luz;
2. mantener los niveles de los planos horizontales (piso y techo) y 3. una misma materialidad: un único piso y un único revoque para paredes y cielorrasos.
Los colores tierra, las texturas porosas, el aroma de la madera, las plantas y la continuidad de líneas crea un clima descontracturado y tranquilo, un verdadero microclima.
La volumetría responde a las distintas funciones, con especial atención a minimizar su presencia desde el jardín posterior, para esto se incorpora una terraza en la planta que vuelve a incorporar la naturaleza y produce un vacío sobre la volumetría reduciendo su impacto sobre el jardín.
Una casa simple, elegante y de líneas puras refugia la vida de esta familia numerosa y se inserta de manera respetuosa en su entorno suburbano.





























