ARCHITECTS
Gga Garciagerman Arquitectos
STATUS
Built
YEAR
2012
LOCATION
Castillejo de Mesleón, Spain
CATEGORY
Residential › Private House
The term “Ex” refers to a vital process developed by our client through an abandonment of downtown Madrid and its disadvantages leaving behind a world of urban routines.
This displacement aims to achieve a feeling of retreat and isolation inherent to the rural setting of the Somosierra mountain range, where the house is located, but taking advantage of its close proximity to the city, with the property at just 1km. distance from the N-1 highway and one-hour drive from Madrid.
A way of life in tune with nature but accessible from the city, appropriate for young dwellers.
The house, camouflaged inside a dense forest, manages to face the views of the granite Somosierra and La Pinilla peaks to the south while looking at the same time to the reddish vast sediment plains that extend to the north, sitting in this geological transition and facing both directions.
These views are formalized in two large identical 4,50m. openings situated in opposite sides of the central square-plan living area. This living area has a fireplace and is double-heighted to the north, regulating the inside temperature of the house.
Building systems incorporate high-tech devices in construction methods with a predominant concern for sustainability in the processes and materials employed, offering environmental standards that combine a contemporary level of comfort with the recovery of a secluded lifestyle with all of its charms.
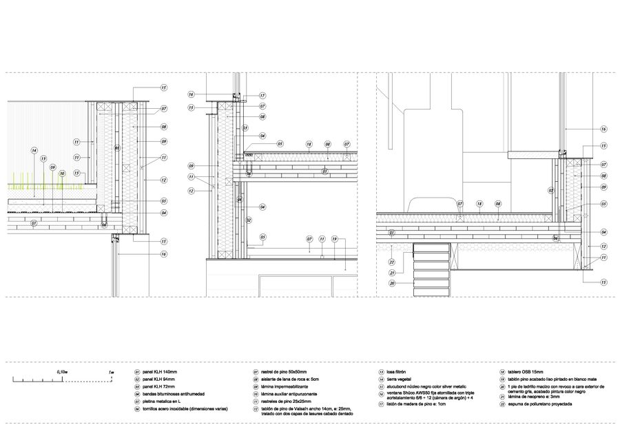
The use of wood and its qualities, not only technical (insulation, easiness in handling, waste reduction) but also cultural and somatic (awareness of a sustainable living, warm textures, comfort connotations), determines the entire working process, providing the house with its characteristics natural and friendly finishes.
The working process was drastically reduced from the usual 13-14 months in buildings of this size (120-140m2) to 3 months, allowing for the house completion in about 8 months from the first drawings, lowering the costs by minimizing transport, reducing displacement of all parts involved and minimizing management phases.
The quartering of high-strength cross-laminated wood panels is modulated to fit one single truck which is driven from the Austrian factory. The panel are then assembled on-site by skilled labour (3 people) in a 5 day process.
The house is built without earthworks and placed gently in the shade of a group of existing trees, rehearsing an essential lifestyle which mixes contemporary devices with the recovery of basic activities.
Fireplace, vegetable garden, septic tank and heat generation system through fire-heated water are combined with 18 cm. mineral-wool thermal insulation, triple gas filled anodized aluminium glazing 6 / 6 +12 +4 mm. and green roofs with a multilayer cover.
All these devices add up to a drastic reduction in maintenance costs.
Facades are done with 16cm. wide toothed wooden planks manufactured from cheap local Valsaín (Segovia) pine, recovering a XVI Century local tradition from the Austria-dynasty-era and in disuse nowadays.
This closes a circle which starts with the high-tech-prefab “pan-European” structure of the house and ends with the reactivation of a beloved local craft in the house’s enclosures.


























