Work Live Help
YEAR
2015
LOCATION
Ingolstadt, Germany
CATEGORY
Industrial › Factory
"Work Live Help" is a 4,000 m2 special workplace for people with developmental and/or intellectual disabilities who wish to work while earning a living wage.
"Lebenshilfe" [life-help] the client and the promoter, is a non-profit organization responsible for the training and supervision of the workers and the products they produce.
These individuals are not always able to integrate within a "regular" working environment sometimes due to their labor limitations but also often due to their heightened vulnerability to emotional unrest in various spatial conditions or atmospheres.
It was of particular importance to design a complex that promotes ease of movement, is soothing, and imparts an atmosphere of focused tranquility.
The design embraces orientation and respite as formative principles informed by a tactful sculpting of light, sound, material, and textures.
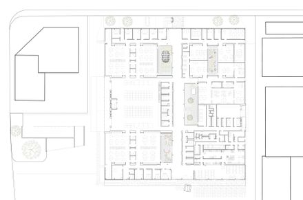
The building is a large square of 65x65m, permeable to the surrounding landscape through long and tall reflective glass windows.
The four small-scale courtyards provide light to the interior space and, through distinct material qualities and program, orient the individuals within the various working zones.
Here, the workers can socialize and indulge in a calming outdoor environment with lush vegetation and tempered air.
The reduced material options (exposed concrete, wood, and glass), bare construction techniques, geometric precision, and selective transparencies make the working environment intuitively comprehensible.
Designing this workshop building meant empathically sculpting an environment that offers a productive refuge and a subconscious calming of the self.















