
N3315 Commercial Facilities
N3315 Commercial Facilities
Joh Sungwook Architects
ARCHITECTS
Joh Sungwook Architects
PROJECT DESIGNERS
Sungwook Joh, Wanggeon Kim, Yeonjae Jang
STRUCTURAL ENGINEER
Eden Structural Engineering Group
ASSISTANT DESIGNER
Eunyoung Oh
CIVIL ENGINEERING
CETS ENG
MECHANICAL & ELECTRICAL ENGINEERING
Suyang Engineering
PHOTOGRAPHS
Kim Yong Kwan, Sungwook Joh
AREA
793 m²
YEAR
2022
LOCATION
Gangnam-gu, South Korea
CATEGORY
Commercial Architecture
Text description provided by architect.
The image of the buildings in Gangnam, Seoul is tall and have huge blocks facing the boulevard.
On the other hand, if you take a step inside from the main street, you can face human-scale buildings in the dense urban structure adjacent to the backside road.
The purpose of this project is to provide a building where occupants can keep a balance between work and rest.
Starting from a cube with maximum volume in the given site, the building is constructed by disassembling the mass into the pieces and stacking them up continuously.
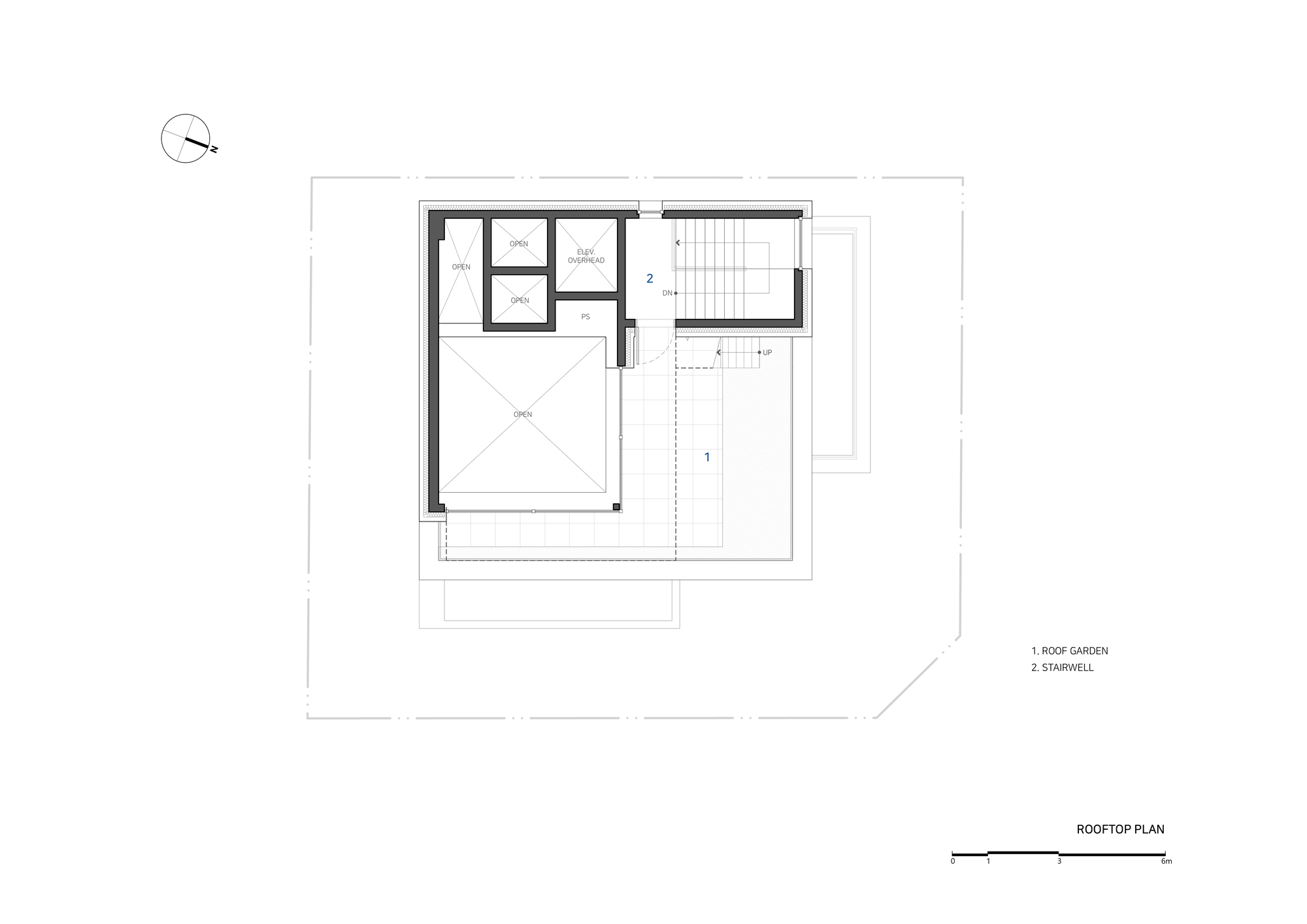
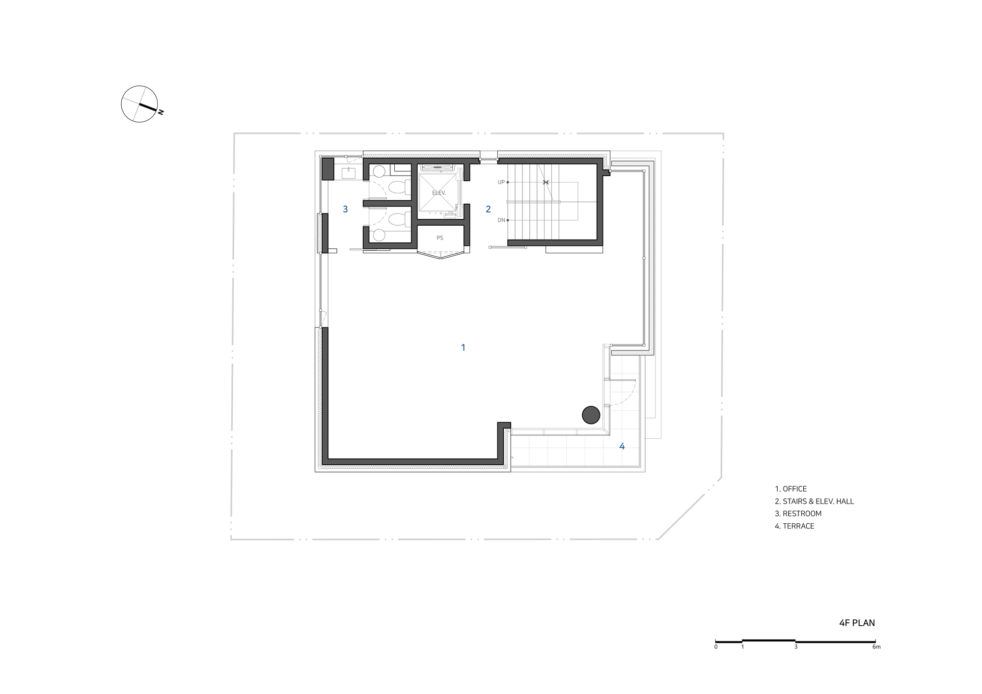
The fragmented pieces are staggered layer by layer, but the direction of the external space is formed differently for each layer. Therefore, the terrace is spontaneously created with different widths, lengths, and directions.
The exterior space expands the interior space to the outside and provides abundant space in the limited working space.
The site adjacent to the steep road creates a level difference of one-floor height between the north and east road. Located in the intersection of the road, the first basement floor resembles to be the ground floor.
Natural light penetrates deep into the second basement floor through a sunken garden located in the corner.
Located in a mixed-use neighborhood, windows are placed in a direction of keeping privacy and the brick pattern of the facade is designed to block the views of the housing areas.
Architecture always transforms accordingly to the values pursued by society.
Unlike the era when only economy and efficiency were important, the present-day requires pleasant working conditions and comfort as much as the living environment.
As the architecture settles down in the site, the image it creates is very crucial. 'N3315' will become a space where these various social needs are fulfilled.


































