
House No.47
ARCHITECTS
Bracket Design Studio
STATUS
Built
SIZE
1000 Sqft - 3000 Sqft
BUDGET
$500k - 1m
YEAR
2012
LOCATION
Isfahan, Iran
CATEGORY
Residential › Private House
The residential project, House no. 47, in an area of 120 sqm (20.55m by 5.90 m) was designed in 2010 for a young couple and their teenage son.
The exterior shell of the project is formed not only out of interaction with and respect for the two adjacent buildings –which are not in line- but also filtration of the unpleasant views to the heterogeneous buildings around was intended.
Besides supplying proper light, the openings on the lower levels, on the one hand, limit the view to the very yard of the project, and on the other.
They block the view of other buildings when curtains are not used while creating a view to Soffeh Mountain on the higher levels.
Designing the main spaces –living room, kitchen and the parents’ bedroom- on the southern side allows for more sunlight while controlling the overlooking views.

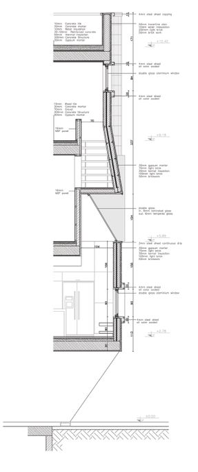
For this purpose, an extended lower window -for omitting the unpleasant views in the living room- as well as an empty space under the stairway to the duplex parents’ bedroom -for the sunlight and the private view to sky- contribute to a lively space full of light for the much-used spaces of the house.
House no.47 is designed in five levels so that the floors are in consequence.
The stairway divides the house into two sections: the southern section in 5 ceilings and the northern section in three make a different experience of the space possible with regard to the function the spaces serve so that the spaces usually used on daylight show a visual continuity from the threshold of the building to its end supplied with natural air conditioning.






















