LOCATION
Leiden, The Netherlands
CATEGORY
Educational › University
New urban development plans within the existing city limits led the municipality of Leiden to resettle the local Marecollege, to a nearby tenantless school building.
The city of Leiden invited 24H to create a design to this question. Since the program of the Marecollege is to big to fit the existing school building, a renovation is not enough and some extensions will be needed.
The Marecollege is a typical Steiner school, so the philosophy of Rudolf Steiner is the basis to their educational principles. The school includes various qualifications of education and to all of them music, dance, theater and crafts constitute a very important part of its educational discourse.
For the concept of the new building extensions, inspiration was drawn from the anthroposophical philosophy.
Part of this philosophy is that scientific theory does not describe reality, but the relations which belong to reality. Both the Ptolemaic and the Copernican world-system can describe the same relations correctly while both do not describe reality.
It would be also possible to describe the same relations with a lemniscate, but this lemniscatic world-system also could not describe reality. This statement can lead students to inspiration.
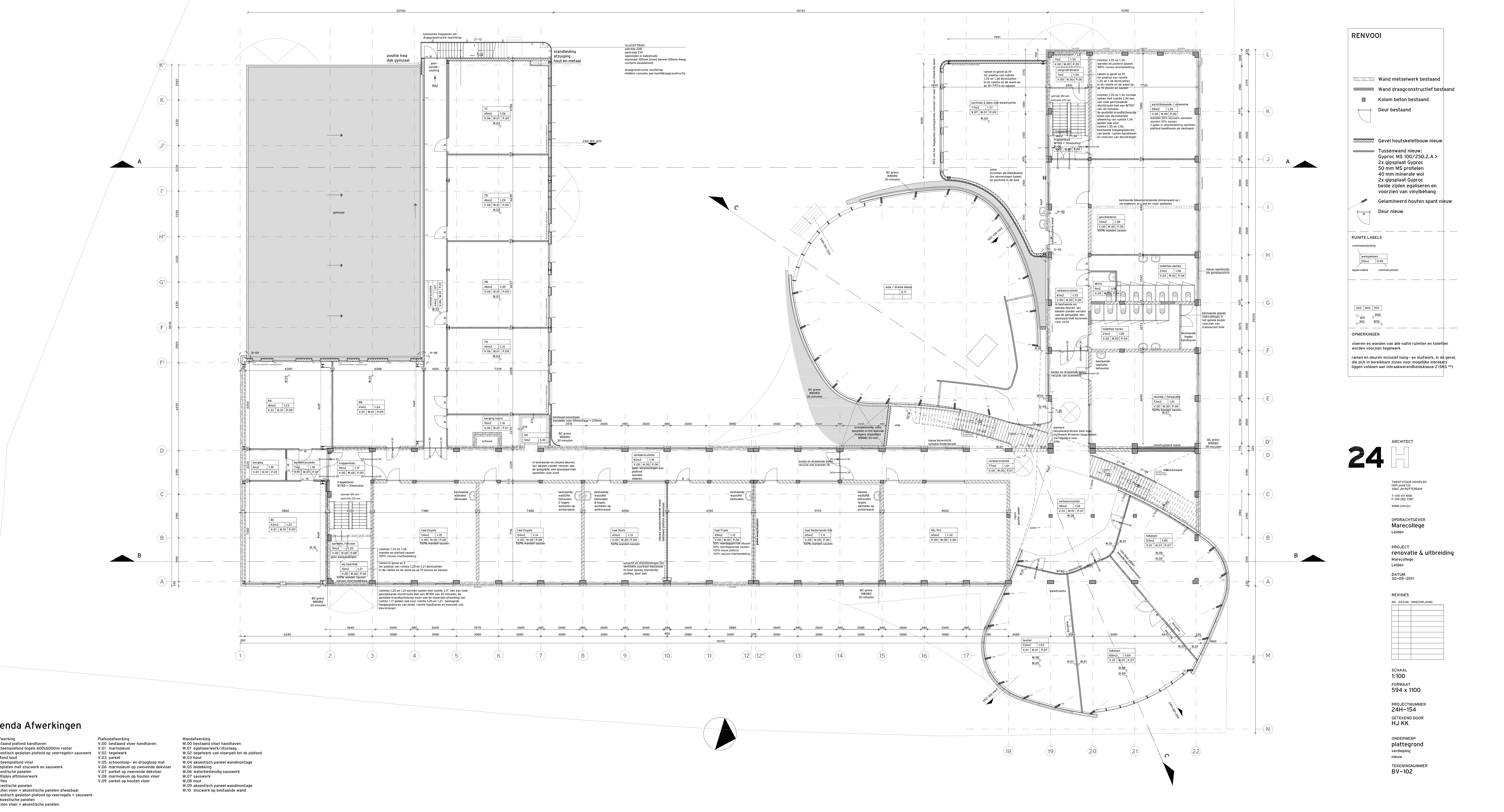
The lemniscates, as a symbol is going to be the new hart of the Marecollege. At the centre of this ancient symbol, where its dynamic line crosses, one will be located directly after entering the building.
From this point two staircases will start en follow its dynamic contour, up to the first floor of the building. The architectural intervention by 24H will be creating space, derived from this 2D symbol. The newly created space will accommodate social functions as auditorium and cafeteria.
The materialization of the wall refers to the natural cycle of the plant. Depending on the position of the wall, it will be finished differently in matters of scale.
The external enclosing structures of the lemniscate are conceptually formed out of two flower petals finished with natural multicolored slate.
The new facades on the schoolyard will get a basic wooden façade enriched with a layer of plant structures also in wood. Stems and leaves of which the leaves will partly cover windows, diffusing sunlight entering the building.
And at last the smallest scale, the existing masonry walls will be overgrown with Virginia creeper (or five-leaved ivy) which changes in colour during autumn and eventually lose all its leaves until spring.
















