University of British Columbia Engineering Student Centre
ARCHITECTS
Urban Arts Architecture
SIZE
10,000 Sqft - 25,000 Sqft
STATUS
Built
BUDGET
$1m - 5m
YEAR
2015
LOCATION
Vancouver, Canada
CATEGORY
Educational › University
The 935 sq m University of British Columbia Engineering Student Centre is a home away from home - a place to collaborate, create and build a community.
Established in collaboration with the Engineering Students, the vision was to create an iconic building that celebrates the science, skill and art of engineering.
The design is rooted in Engineering culture and tradition while looking to the future. It is founded on the Engineering Undergraduate Society’s new paradigm –supporting engagement in local and global initiatives while embracing a multi-disciplinary and sustainable approach to Engineering.
In response, the Student Centre has been designed as a “living lab” to showcase innovative engineering strategies.
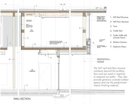
Key concepts included pushing the limits of wood construction, implementing passive design strategies, demonstrating building systems through absence, and creating a healthy, inclusive social space.
ESC demonstrates a sustainable engineering mandate through a minimal systems approach - highlighting innovation through absence. The passive design approach maximized the environmental benefits of the site and created a vibrant social zone at the heart of the Engineering Precinct.
Located in an existing courtyard and surrounded by 2-6 storey concrete buildings, the ESC is a transparent beacon displaying the social activities within.
Designed to host events from 2 persons to 400, the building was sited to maximize sunny exterior courtyard areas for gathering supporting indoor-outdoor connectivity.
ESC is also sited to take advantage of the micro-climate of the courtyard, using the shading from the existing buildings and optimizing the use of localized wind patterns.
The cantilevered Nail-Lam roof and 2nd floor address the seasonal sun paths, permitting winter solar gains while limiting solar exposure in the summer, and equally demonstrating the innovative use of the prefabricated Nail-lam roof and 2nd floor structure.
Natural ventilation is achieved through the stack effect, harnessing the constant wind in the courtyard. The radiant heating systems are tied directly to a District Energy System for the heat source, minimizing energy consumption.
Defined by the wood trusses above and the warmth of the exposed NLT ceiling, the ground floor social spaces are the “raw spaces”- a fluid gathering zone for parties, competitions, frosh events, relaxing and gaming. The second floor houses the Engineering Undergraduate Society offices, the study zone, and a roof terrace.
These spaces are the “cooked” spaces – a more refined series of linked spaces for meeting, interviews and study. As a living lab, didactic moments are layered through the project: NLT panels are left visible to reveal their orientation and bearing on the structure.












