
0 to 150 LVL House
LANDSCAPE EXECUTION
Sahyadri Gardens
INTERIORS – FABRICS
CC Furnishing
CONTRACTOR
Imec Consultancy
PRINCIPAL ARCHITECT
Manuraj C R
PROJECT ARCHITECT
Albert Jose
FURNITURE DESIGN
Yellow Petals
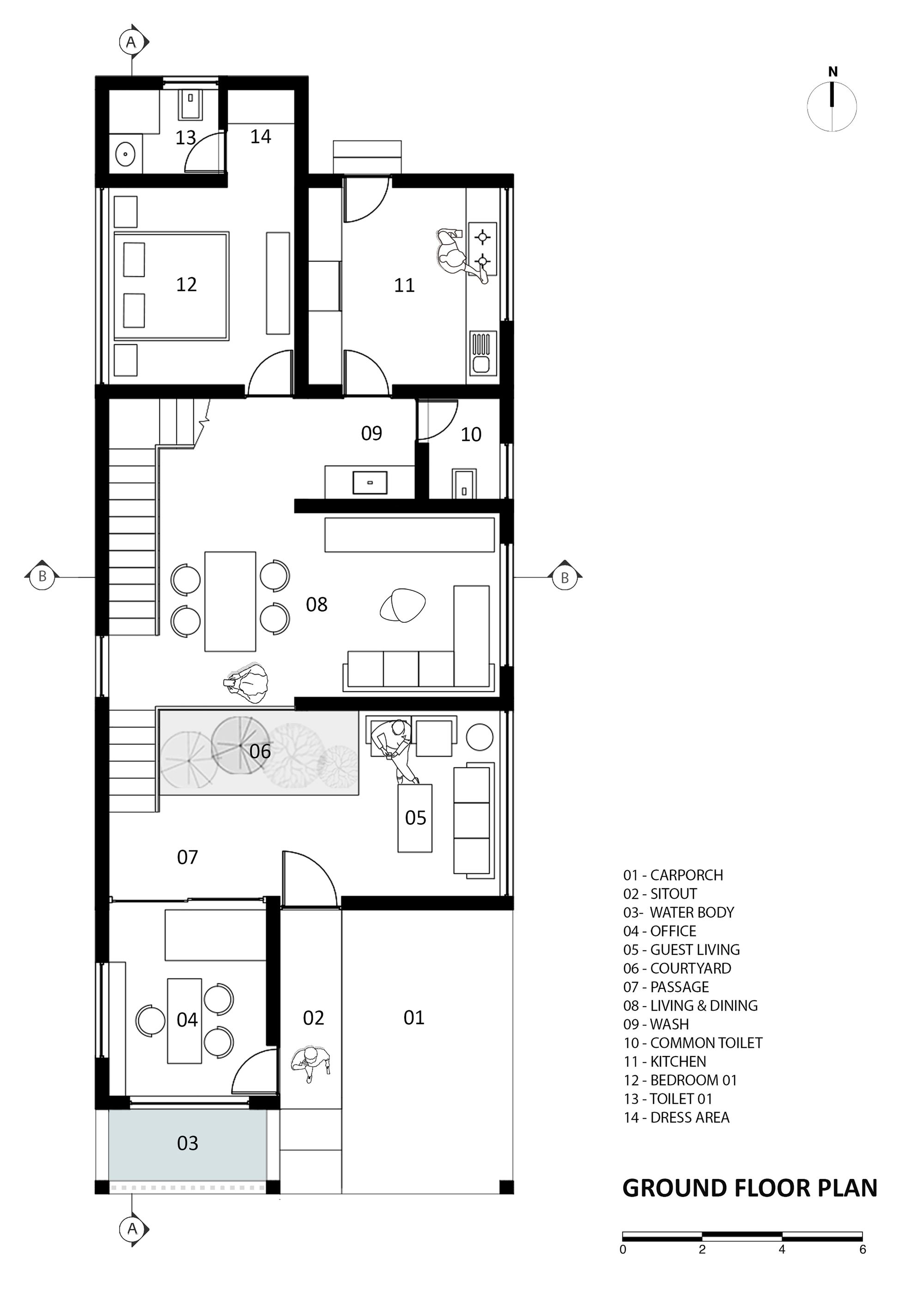
AREA
171 M²
JOINERY
Anila Industries
MANUFACTURERS
Saint-gobain, Asian Paints, Bosch, Europa Locks, Greenlam, Greenply, Hettich, Jaquar, Tile Vetrified Tile
YEAR
2022
LOCATION
Ernakulam, India
CATEGORY
Houses
Text description provided by architect.
The topography of the land, the rays of the sun, and the gushing winds have created a dominant contextual parameter onto which the house has been woven. 0 to 150 lvl House is a response to the client’s brief of wanting a distinctive and functional home.
Rooted in simplicity and minimalism, it stands there pronouncedly and completely in harmony with its surroundings to provide the user with a house that they can call their home, blurring the boundaries between the tangible and the intangible.
Despite the narrowness of the site, the interior spaces did not compromise the movement of light and air circulation.
The design also took advantage of the longitudinal slope of the site via a stepped-down floor plate following the natural contours of the land, creating levels inside the house and thus the name 0 to 150 lvl.
On entering the house, one is welcomed by an internal courtyard whose prolific green foliage is bathed with natural light from the overhead skylight feature.
This miniature green strip provides the emotive focus, visually connecting the entry to the living room and dining space.
The street-facing office room in the front portion of the house is kept private by giving a separate entrance from the sit-out.
The brick screen with an in-between water body in the façade acts as a double wall and creates a buffer space between the living spaces and the exterior façade.
The levels and the openings create a strong visual connection between the different units to facilitate a sense of connected living for the family units.
The little courtyard which acts as a transition space on the ground floor stays lit throughout the day giving out a light and airy feel to the spaces.
The North-West corner houses the master bedroom and kitchen in North-East corner capturing the morning light.
The house is revealed through a series of floating stairs, staggered in flight to open onto transitional spaces on each level, providing opportunities for pause and chance encounters.
The first floor consists of 2 bedrooms.The bedrooms with careful space planning have small spaces for sleeping with integrated walk-in wardrobes.
The brick jallis is used as a screen wrapping around volumes filtering light and lending privacy, the concrete and the white painted walls become animated surfaces as a result of the play of light filtering through the trees on them reflecting the shadows of the surroundings.
The tinted glass inserts on the walls add striking colors to the material palette of the house.
This arrangement creates a drama of light and shadow on the facades with the sun striking them. The patterned exposed concrete ceiling adds a layer of texture to the interior spaces.
The green court, garden, brick jallis, and stilts- are all in harmony to achieve the purpose and to offer the most needed getaway spaces- visual as well as physical.
The clutter-free interior design, climate-responsive facades, and openings allow a lot of natural creating a contemplative calm.



























