Itahyê Residence
SIZE
3000 sqft - 5000 sqft
PHOTOS
Edu Castello (20)
YEAR
2014
LOCATION
São Paulo, Brazil
CATEGORY
Residential › Private House
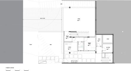
The 3500 ft² is divided in 3 stories. The lower level concentrate the garage, laundry and storage areas.
The middle level reaches the back yard and have the kitchen and living area as the upper floor is reserved for the family room and 3 bedrooms.
To reinforce this distribution we adopted different materials for each level: to the lower floor brick, to the middle level a solid concrete box and blue metallic tiles for the upper level.
The material choices took in consideration maintenance in a long term and thermic performance, calculated by an specialist for each area of the house.
The same studies dictated the place and size of the openings guaranteeing the best location and ventilation area for a breezy room in the summer but cozy and warm in the winter.
With all this information we studied the facades and types of opening to a result we were pleased with.
The client wanted to have more external area as he could, one of the reasons he was moving away from and apartment to a home.
The floors distribution permits cars to be isolated from the social area, the living room only touches the ground so it doesn’t take space from the generous lawn and the upper floor creates a roof for the varanda and part of the garden so it allows for the family to have privacy from the lower street when using the social area and open the house and bedrooms for its own garden.
Part of the living area has a double ceiling that integrates with the family room and allows better ventilation. Large sliding door integrates the living with the garden.
We choose to dislocate the veranda with barbecue equipment to the kitchen alignment in a way not to block the living room view and have more connection between barbecue and kitchen.
To protect the veranda area from the setting sun, white ceramic elements were set to protect and create a shadow pattern.
The raw concrete is present in all external walls. To balance it, all the remaining walls are white and make a good balance with the wooden floor.
On the upper floor, 3 bedrooms receive both kids and the owners, each one with his own suite.





























