
Wyndham Clubhouse
ARCHITECTS
MIA Design Studio
TECHNICAL DESIGN
Bui Hoang Bao, Nguyen Thi Hao
FURNITURE CONTRACTOR
Thanh Thang Thang Long
CONCEPT DESIGN
Truong Nguyen Quoc Trung
CONSTRUCTION CONTRACTOR
Megabuild
PRINCIPAL ARCHITECT
Nguyen Hoang Manh
LOCATION
Phu Quoc, Vietnam
CATEGORY
Hospitality Architecture
Text description provided by architect.
The project is a hospitality building located in the coastal resort of Phu Quoc.With the desire to bring a new perspective that is both modern and traditional to this building, we think about the image of the lantern.
The lantern will give the experience a soft, gentle feeling of light at night, and be a highlight at the entrance to the resort.
The main material selected is bare brick, in order to exude the beauty of meticulousness and precision of the local mason.
During the day, the bricklayer could block and soften the sunlight, while providing excellent natural ventilation for the building, which is one of the prerequisites of architecture for tropical climates.
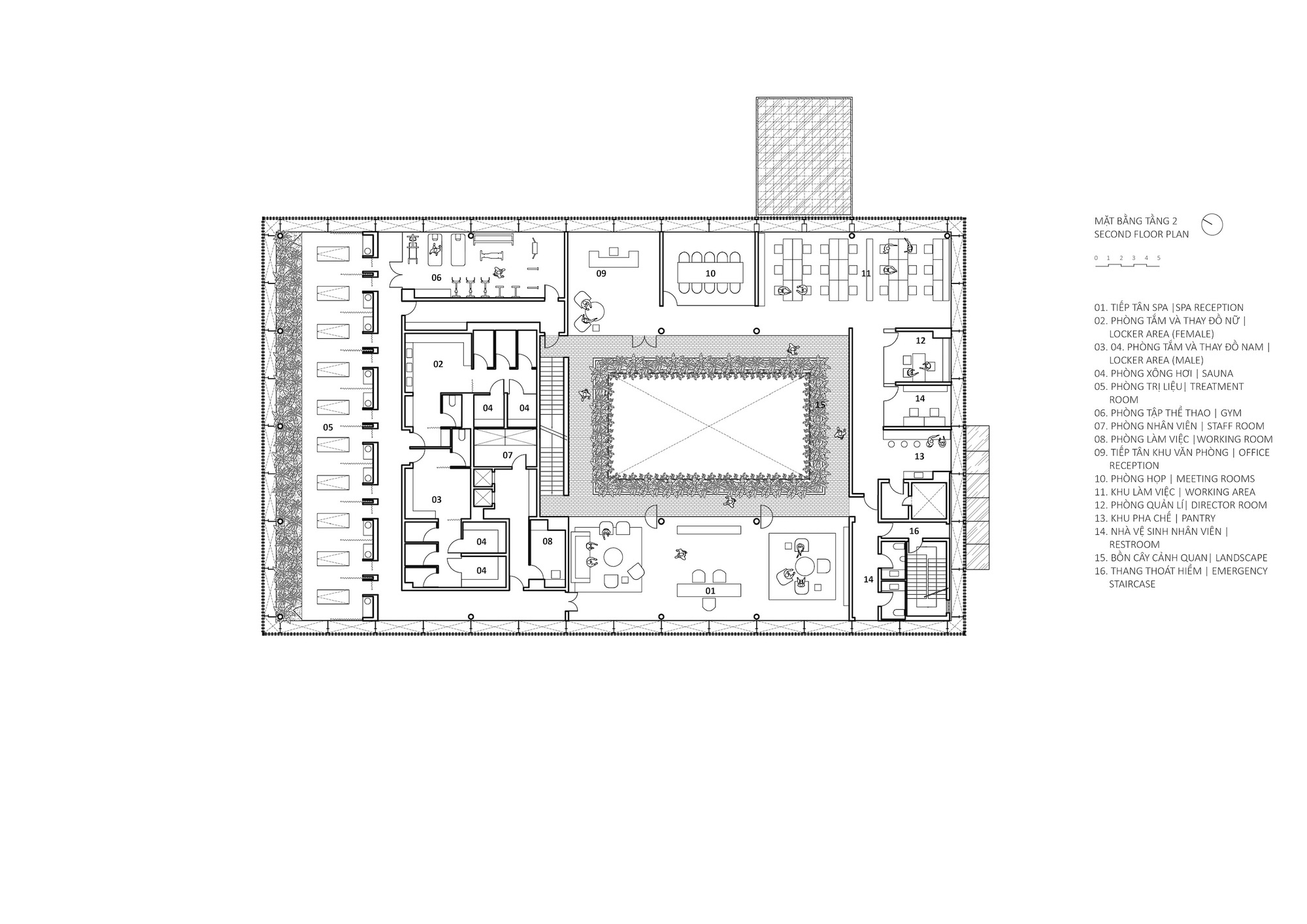
Inside the lobby space is The courtyard is the crucial element that once again affirms the immutable values of traditional architecture passed down to this day.
Just by applying techniques of exploiting, softening, or contrasting natural light, along with the organization to create wind convection throughout all spaces, the project has created a separate atmosphere for relaxation.
The indigenous materials of bamboo, bare brick, wood, and grindstone... once again create a great mix and bring a strong connection to the local area.
If we wonder about the role of architecture in human life, whether the basic value is providing sufficient shade from which people can stay underneath and get as much of the beauties of nature as possible from the sun, the wind the grass, the water...











































