
Residential House in Minsk
PHOTOS
Leonas Garbacauskas (10)
ARCHITECTS
Jurgita Skalskytė, Linas Kraniauskas, Gintautas Natkevičius
SIZE
1000 Sqft - 3000 Sqft
YEAR
2014
LOCATION
Minsk, Belarus
TYPE
Residential › Private House
The clients are Belarusian businessmen, whose field of activity is related to interior design and curtains. They found the bureau in 2007 and requested to design a family house in Minsk, Belarus. They desired a house which would be designed in a contemporary manner, which was surprising, knowing the eclectic classical style of Belarusian architecture those days.
The beginning of designing process was quite difficult, because of indefinite boundaries and altitudes of the site. The topographic map was necessary, and it was really difficult to get one at that time.
When the architects finally got the material, they realized that the parcel was very narrow and long, with the forest on one side and a street on another. The narrow sides of the site bordered with tacky post – Soviet style buildings.
These circumstances led to an idea to design an ascetic, simple, rectangle shaped volume. The architects wanted to make this volume separate from the surroundings but also connected with the environment it was in.
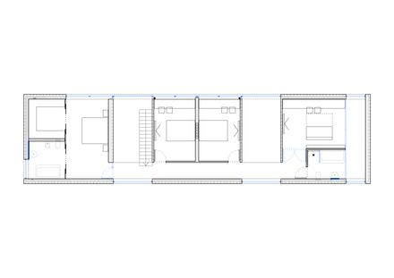
The only part which is designed completely closed is the west façade which isolated the building from the neighbor’s house nearby. A simple shaped house has an interior space which is made from three separate cubes which are connected with curtain walls in between.
The first cube contains a garage in the first floor and a master bedroom with wardrobe and a bathroom in the second. The second cube has a boiler room, a bathroom, a pantry and the kitchen in the first floor and two children bedrooms on the second floor.
The third cube consists of the living room on the first floor, and a workroom and a bathroom on the second floor. To create dynamic and pulsing spaces in the house, in between those three cubes the space is open to the ceiling of the second floor.
It creates an interesting scenario, in which the first floor is more private and narrow, until you reach the space in between the cubes, where the space opens itself up in two directions between the two floors.
The finishing of the house is made from black clinker bricks, which are used not only in the exterior but also in the interior. This eliminates the border between the outside and the inside.
Also, this material is chosen to emphasize the simplicity of the building which contrasts with the surroundings.















