Dnipro Optics
ARCHITECTS
Alexey Obraztsov
STATUS
Built
SIZE
0 sqft - 1000 sqft
YEAR
2015
LOCATION
Dnipro, Ukraine
CATEGORY
Residential › Private House
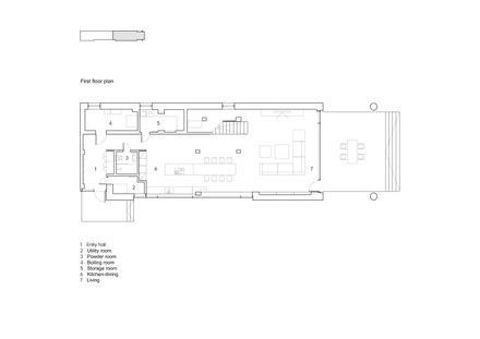
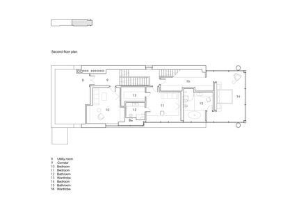
Oblong shape of the ground area (15x100m) has required an original solution for the space design of the living house.
It resulted in an expressive architectural form that challenges the area constraints and organically merges with nature.
Broad stained-glass windows of the first 3 floors with a picturesque view of the Dnipro river panorama eliminate the boundaries between interior and external world.































