House In Libertad St.
ARCHITECTS
Arquitecto Pedro Livni
STATUS
Built
YEAR
2014
LOCATION
Montevideo, Uruguay
CATEGORY
Residential › Private House
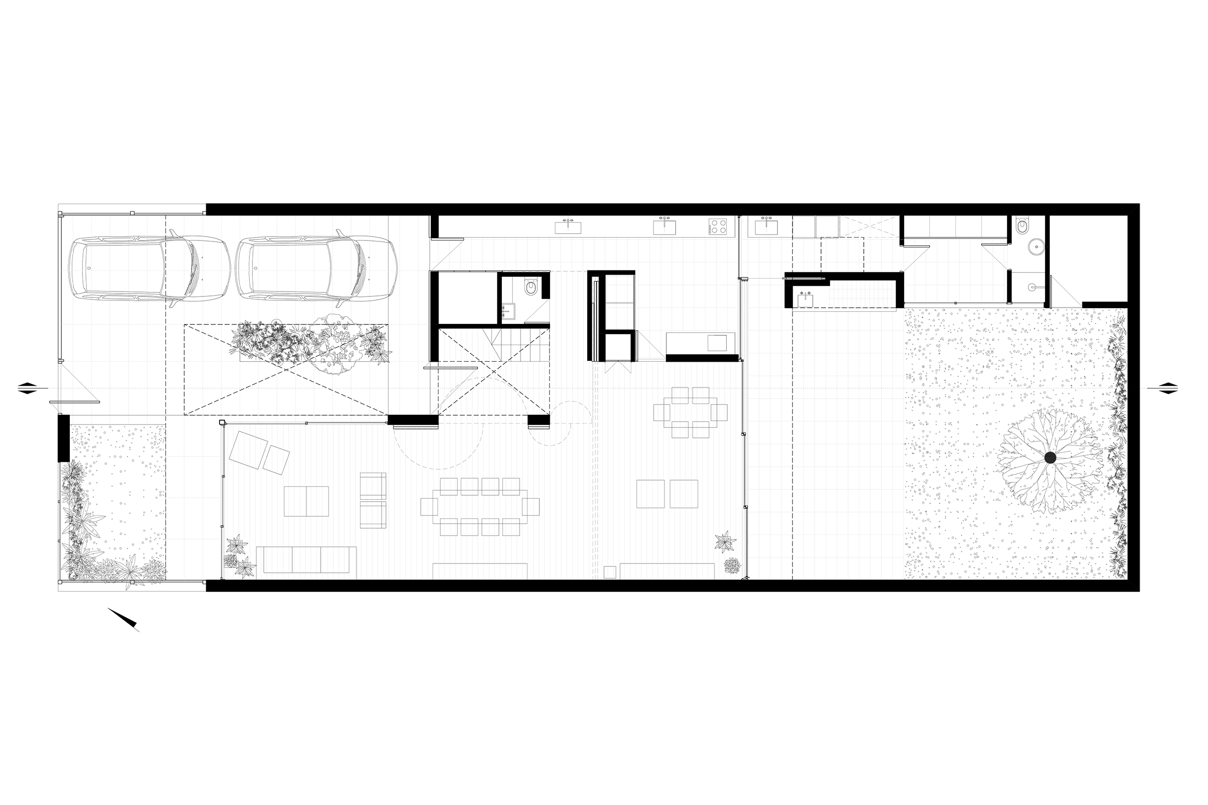
The commission to be set on an infill lot, within a highly consolidated sector of the city of Montevideo as the neighborhood of Pocitos is, while facing a high traffic street, consisted of the design of a four bedroom house with the associated living areas:
Living room, dinning, den, kitchen and scullery, plus the service areas: laundry room, storage area, and service quarters.
Added to this was the need to park two vehicles in the lot's front setback. A program which at first glance resulted slightly excessive in relation to the size of the plot.
In addition to the program, the desire for natural light, direct sunlight whenever possible, to enter all the spaces of the house was also posed.
On our part, as a starting point, we stated the idea of a house that could guard the privacy of the domestic life relative to the street while not renouncing a strong relationship between the interior and exterior spaces.
Another initial theme which for us was important was the idea of flexibility: The possibility that the living spaces -the binomial formed by the living-dinning room and the den- can be conformed as a single continuous space while also being able to gain independence and function separately.
Starting with the aforementioned demands and the conviction of designing an urban house, two ideas relative to the spatial organization prevailed above the rest.
The first consisted of appealing to the horizontal dimension:
This was materialized through the configuration of the living spaces in an open plan set at street level.
In this manner it established a link and an uninterrupted prolongation of the interiority and domestic uses onto the exterior spaces.
Continuity only mediated and protected from the street noise by green spaces.
This was achieved with the application of diverse mobile walls which with their hiding and different configurations enable the spatial performance.
Likewise, this center allows the access of direct natural lighting to all of the common areas of the house and establishes a very intense relation between the ground floor of communal use and the first floor reserved to the private spaces.
Finally, from a material standpoint the monomateriality of reinforced concrete is resorted to for slabs and vertical surfaces in contrast to the application of the warmer wood for the pavements and mobile dividing elements.
From a morphological standpoint the house is able to satisfactorily articulate an urban context in which due to the superposition of successive normative changes two story houses in different street alignments coexist interspersed with highrise buildings of up to 10 stories.
This is reinforced with the construction of a deep access, which allows the house to establish a strong relationship with the street (a street with a high intensity of traffic) without renouncing the domestic privacy that the program requires.
Thus on the ground floor a gradient is set -street, sidewalk, front yard and deep access, interiority and yard once again- which regulates the dialogue between the public and common dimension with the domestic and private milieu.
A spatial sequence mediated simply by plant species and glazed closures.
Inside the house the versatility achieved for the configuration of common spaces has allowed a very good performance adaptability to the different situations of domestic life.
From the habitual reunions and celebrations in which the interior and exterior fuse into one great undifferentiated continuum, to moments in which the space is compartmentalized and allows the children to freely play without distorting the other areas of domestic life.
The upper level destined for the privacy of the bedrooms, while being articulated around the double height rotative center, prolongs onto the great terrace, a play area also, which protects the access and reinstates the bond with the street.



























