de Gouverneur
YEAR
2016
LOCATION
Gouvernestraat, Centrum, Rotterdam, Netherlands
CATEGORY
Residential › Private House
Though Rotterdam - with its high-rise and modern developments - feels like a pretty dense city, there are still empty plots in the city center. These are the result of the ambitious post-war plans in between old houses.
The gaps in between old and new are often left open, which are potential locations for small buildings. The local-government stimulates initiatives for such small scale projects. We started to bike around the city to find a plot in our favorite neighborhood and we took a close look to possible locations and the regulations that comply.
About 2 years ago [sept 2014] we laid eyes on this very location, and we contacted the local-government with an email questioning: can we build here? Followed by a reply: Yes, please! The contractor started building in March 2016 and finished in July 2016.
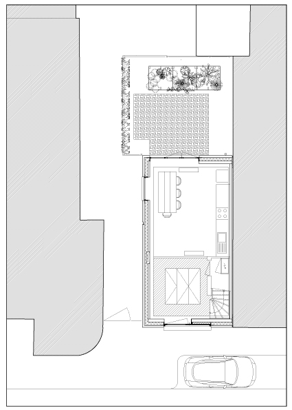
The house is a fill-in project with extra attention to respect the views and daylight of the neighbors and the existing passage to the backyards.
The building with 4 levels, just like the adjacent buildings, is therefore built on a small plot. The house is 4,65meters in width and 8,8meters deep. Every floor contains 1 big room.
Ground floor: kitchen/dining room, connected to a little garden. First floor: office. Second: living room. Top floor: sleeping room and rooftop terrace.
The usable floor area is 120 square meters. The stairs are positioned in such a way that they provide a lot of flexibility and splitting floors in multiple rooms is possible.
The concrete walls which are necessary for the stability the house are left visible. Rough concrete shows the structure and features the interior of the house.
The polished concrete floors are only 180mm thick, including the finish and floor heating. The concrete beam normally situated under the ground floor is put on top of it, to create a conversation pit containing the kitchen.
The buildings in the street are built in different moments in time, from 1850 on, showing a variety of architecture. They all have one thing in common: the buildings are materialized with brickwork.
This new house in an old street, complies with the old by the introduction of something new. The chosen bricks seem ordinary and go well together with both adjacent buildings. Though these are waste based, Stonecycling bricks, which hasn't been applied yet.
A mix of brick bonds is used, in which the sliced stones form long vertical lines across the facade. These sliced stones show the ingredients of the brickwork: building waste such as glass, ceramic waste such as toilet bowls and roof tiles.
Thereby the waste is the ornament in the facade and looks at the same time identifiable, showing the beauty of a circular building material.
















