
Rumah Guntur House
ARCHITECTS
PSA Studio
LEAD ARCHITECTS
Ario Wirastomo, Ditta Astrini Wijayanti
SITE ENGINEER
Muchammad Sjahroni, Heri Setyawan
YEAR
2022
LOCATION
Indonesia
CATEGORY
Houses
Text description provided by architect.
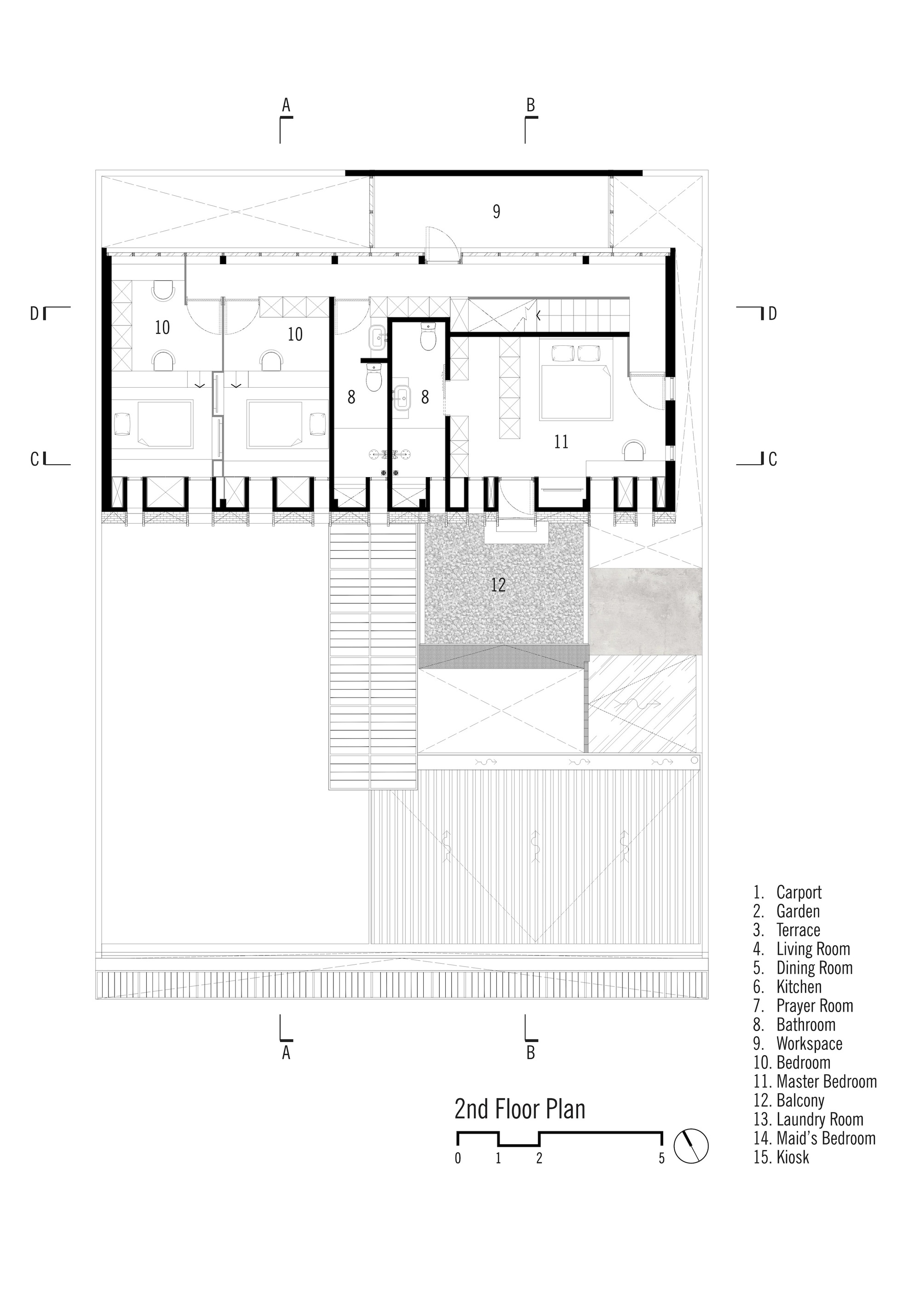
With a total land area of 300 sqm, the owner only needs half of it for the main activities of the house, while the rest is planned as family recreation areas such as sports, gatherings, and playing. The first floor is elongated to the right side of the land.
Initially, the mass of the second floor was positioned the same as the first floor, but we wanted to slightly 'play' on the massing by rotating it 90 degrees so that it is transverse to the site.
This arrangement opens up new possibilities, such as creating a large terrace area on the first floor and creating additional space on the second floor as a workspace and a balcony, which complements family recreation facilities in the form of outdoor and semi-indoor.
To maintain the family’s privacy, the main gate is made quite high with massive material connected to the carport canopy.
The tropical concept is applied differently in this house by tilting the wall facade and limiting the width of the openings to protect from rain and direct sunlight.
Brick material dominates, not only as a second skin but literally as a room-dividing material.
Every room in this house is planned as carefully as possible according to the owner's needs, who wants everything just the right size but accommodating all their needs.
The stairs area and kid's room only use boards as room dividers, blending together as furniture elements. Almost every corner of the house is used as storage to keep the house looking tidy.

























