
Cross Park Place
ARCHITECTS
Neumann Monson Architects
AREA
10,000 sqft - 25,000 sqft
STATUS
Built
BUDGET
$1M - 5M
YEAR
2019
LOCATION
Iowa City, IA, United States
CATEGORY
Residential › Multi Unit Housing
Cross Park Place is an Iowa City Shelter House project based on two nationally recognized models: FUSE and Housing First. The new building will provide a permanent home for the chronically homeless, integrating health and social services into permanent, stable housing.
The project was made possible through donations from the Iowa Finance Authority and the Housing Trust Fund of Johnson County.
Consequently, the design was driven by the need to utilize those funds in the most responsible way possible.
The team sought to select the most efficient, durable systems, and low maintenance exterior and interior materials and finishes.
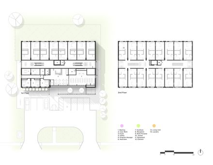
The floorplan takes full advantage of the restricted width of the site as well as zoning regulations which specify a maximum of 24 one-bedroom units on the site. Each unit will include a single bed, bathroom, and kitchen/living area.
The first floor includes a reception desk – staffed 24/7, a flexible multi-purpose room, and on-site support services including an exam room for medical care and offices for case management providers.
Several age in place characteristics such as accessible restrooms in each unit, elevator access, and adaptable casework have been integrated for older adults.













