Shangfeng Public Library and School Gymnasium
MEP DESIGN
Zhengyi Mep Engineering Consultants
STRUCTURAL DESIGN
Envision Engineering Consultants Co., Ltd.
LOCATION
Taichung, Taiwan
CATEGORY
Library, Gymnasium, Educational Architecture
The project locates at the fringe of Taichung City. Like most rural areas in Taiwan, it is densely populated with low-rise residential buildings and farmland, however very few areas are reserved for public amenities.
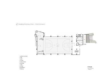
It has called for a library for the community and a school gymnasium, right next to an existing primary school.
The challenge of this project is more than just simply placing these two buildings and programs in a very difficult site but creating a sense of place through expanding layers of activities, natural conditions, tectonic details, and ambiance.
Because the site is very long and narrow, buildings have to be distributed at two ends of the boundary.
These two buildings shall face each other and create a communal square in the middle. The square becomes the new focus as well as the new side entry for the school which knitted the community and school even closer.
Outdoor terraces, roof gardens, and a ramp projecting out from these two buildings try to extend the periphery of the communal square.
The site and the school are separated by an abandoned irrigation channel filled with native aquatic plants and habitats and are now used as an observation quarter for a science lesson in school.
Rather than treating the irrigation channel as a site constraint, it has become the stimulus for the form of the library as well as the landscape surrounding it. Now the channel is expanded as a pond and surrounded three sides of the library.
It serves as the fence for the school without disrupting the visual continuation of the landscape.
Because the site is long in a north-south direction, buildings are largely exposed to the afternoon western sun which is detrimental to books in the library.
Therefore, walls at the west are tilted at an angle to allow slits to be opened and have windows facing north to enjoy ample indirect sunlight. To combat the heat gained from the harsh western sun, buildings benefit from double wall construction, as air cavities behind brick walls act as a layer of heat insulation.
The light coming from these windows turns pinkish in color as it bounces off the red brick wall during the late afternoon and offers a surreal sense of changing time.
The idea of the library is to be a neutral container of books as well as the space and its surroundings. The surfaces of different materials inside are all painted in white, to heighten the abundance of natural sunlight, its warmth, and colors at different times.
Textures of these materials surfaces cast subtle shadows and offer different shades of whiteness to enrich the sense of space.
Once entered the library, people will be greeted with a sumptuous view of the outdoor landscape in the foyer thanks to large windows facing north at one side.
On the other side is an airy central atrium that acts as a pivot to all spaces in the library. The ribbon-like stair in the atrium meander three floors of the library, directing or hinting at spaces beyond.
The ground floor is served as a community living room and children’s quarter. Large windows are placed right next to now enlarged naturally sculpted aqueducts.
Morning lights dance through swaying willow trees, as the sound of water flowing through the landscape can be heard by the readers.
The second floor is for general reading. All open-book shelves are kept below 110cm to ensure an unobstructed view of the entire length of the space.
Even with its openness, different pockets of reading areas are defined by their immediate surroundings, ranging from relaxing sofas next to outdoor terrace gardens to quiet study corners.
The third floor contains a multi-purpose classroom and young adult section, which are the nosiest programs.
Therefore, they are placed on the top, away from the quiet reading below. The roof of the young adult section lifts to allow indirect soft southern sunlight to fill the space.
As one thinks the spatial sequence of the library is about to end, people will suddenly discover a large outdoor roof garden awaits as they turn their heads.
The roof garden is inclined so people will only be able to get a glimpse of the landscape up and beyond, therefore encouraging readers to step outside and discover further as we should in the sea of knowledge.




































