
Yunyao Yubi Community Center

YUNYAO YUBI COMMUNITY CENTER
Challenge Design
LOCATION
Chongqing, China
CATEGORY
Government + Health › Community Center
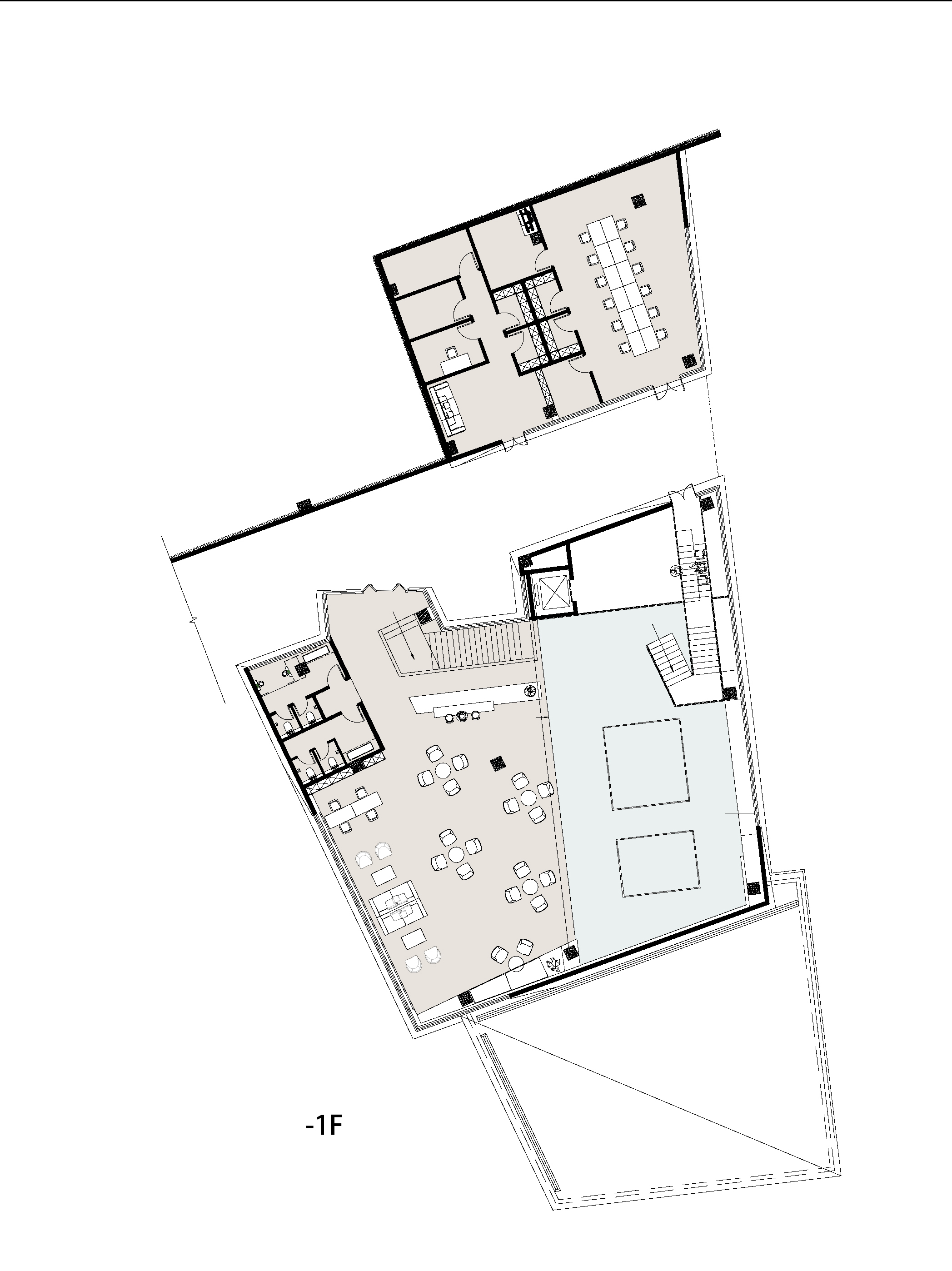
This building is adjacent to Chongqing Yubei District Huashigou park and located on a hillside, the designer coordinates the building and environment peacefully without trying to destroy or defeat their direct background.

As a community activity center, hope that people will not look up to it, but lower their perspective to experience it personally, which is the destination of architecture.
What makes hillside architecture different from other types of architecture is that it has a complicated and abundant environment carrier, and the design must regress to the essence to seek the organic connection between the building's external shape, internal space and the surrounding overall regional system.

The design of this building is inspired by the luminous Rubik's cube, which is a floating flash point and memory point in the forest, carrying the future life of the residents, as well as a spiritual place.

































