CasaTresAguas
ARCHITECTS
DesignH&C
BUDGET
$100K - 500K
SIZE
0 sqft - 1000 sqft
YEAR
2020
LOCATION
Celestún, Mexico
CATEGORY
Residential › Private House
On a small plot of land measuring 10m by 50m in the fantastic fishing village of Celestun, Mexico, two architect friends and longtime collaborators in the hospitality industry, have created a beach house as a weekend getaway for their families, to immerse into nature and the tranquility of the fisher town of Celestun.
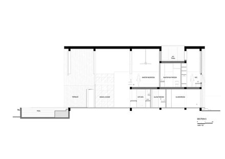
The name CasaTresAguas alludes not only to the pitched roof geometry, but also to the fact that it is located inside a biosphere reserve between the lagoon with its famous flamingos and a huge diversity of birds and the tranquil and turquoise sea with its white sand, adding the third element of comfort and pleasure with its own swimming pool.
A seamless transition between in- and outdoors, as well as a focus on comfort and nature was the main goal to be achieved in all aspects.
The master bedroom on the first floor is a loft-like setting and has a fantastic, clear view of the ocean.
The entire beachside is designed as a full height glass-front stretching from peak to floor and vertically connecting all the spaces consisting of kitchen, dining and lounge with the outdoors and pool areas..
To the north side of the house, the small kitchen opens to a terrace with a custom designed outdoor dining table and BBQ.
Effective cross ventilation was an important part for the design in this climate, to reduce electricity cost by avoiding the use of the Air-Condition as much as possible.
Although the appearance resembles the traditional design of Palapas in the region (thatch huts), it has been opted for using durable materials, all locally sourced and with low carbon footprint.
Everything has been designed with the needs of guests in mind and has been built by local contractors, mostly from the village itself as wells from the city of Merida 100km away.
























