PHOTOS
Mark Woods
PROJECT TEAM ARCHITECT
shed Architecture & Design Contractor: By Owner
STRUCTURAL ENGINEER
todd Perbix Photography: mark Woods
YEAR
2020
LOCATION
Seattle, Wa, United States
CATEGORY
Residential › Private House
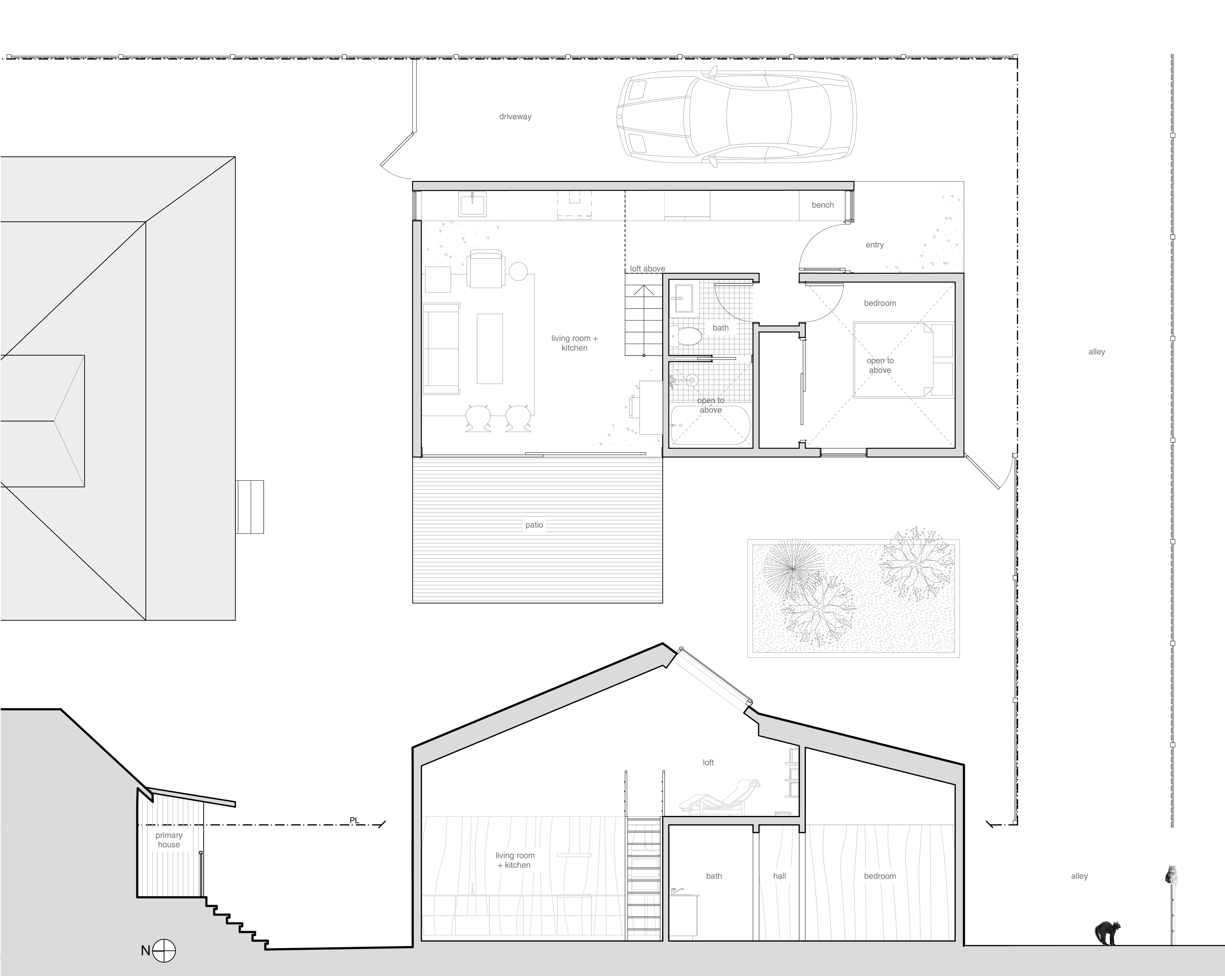
Alley Cat was designed as a compact homebase for a couple who travel frequently between Seattle and the Southwest and who wished to rent out their craftsman residence.
Looking for a clear and separate design identity for the Detached Auxiliary Dwelling Unit (DADU), the client requested a unique structure that was low-maintenance and PV-ready, easily accessed from the alley and with a strong relationship to their existing garden.
In addition, the client was hoping for an interior space open to the sun, and with primary rooms on one level for aging-in-place.
Seattle-based SHED Architecture & Design was tasked with marrying each challenge into a functional and thoughtful design.
SHED located the structure on the east half of the lot, between the DADU-required parking space and the garden, facing south towards the alley.
The building’s gable is scaled to adjacent buildings–it’s asymmetrical ridge oriented to the sun.
In appearance the building is reminiscent of a cat whose back is flattening to the ground, ready to pounce.
SHED opted for fewer, but more effective windows: Four parallel skylights in the lofted space provide daylight from above, while allowing for nighttime stargazing.
Downstairs, a peek-a-boo window along the kitchen counter and thoughtful placement of the bathroom window further evidence this strategy.
A wide, sliding door opens the living space to the garden and patio, preserving privacy from the main home while capturing afternoon light.
Despite the building’s small footprint, the living and kitchen feel spacious thanks to the copious natural illumination and high ceilings, a design solution carried through in both bed- and bathroom.
On the interior, the material palette is elemental and purposeful: Heated concrete floors establish a uniform ground plane, plywood-cladding lining the rooms captures warmth and durability while white walls high above reflect light throughout the spaces.
The DADU’s exterior consists entirely of standing seam metal panels, creating a durable, maintenance-free skin. The eroded southeast corner shelters the DADU’s entry, the metal skin yielding to wood as one enters the building.















