STATUS
Built
YEAR
2019
LOCATION
Portland, OR, United States
CATEGORY
Residential › Private House
Responding to the client's design aesthetics, we created a dark stained wood box, with a back patio carved out and clad in warm natural wood.
To respond to this request we cladded the simple form in darkly stained cedar siding, with natural cedar where the volume is carved out at the back patio.
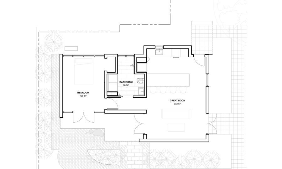
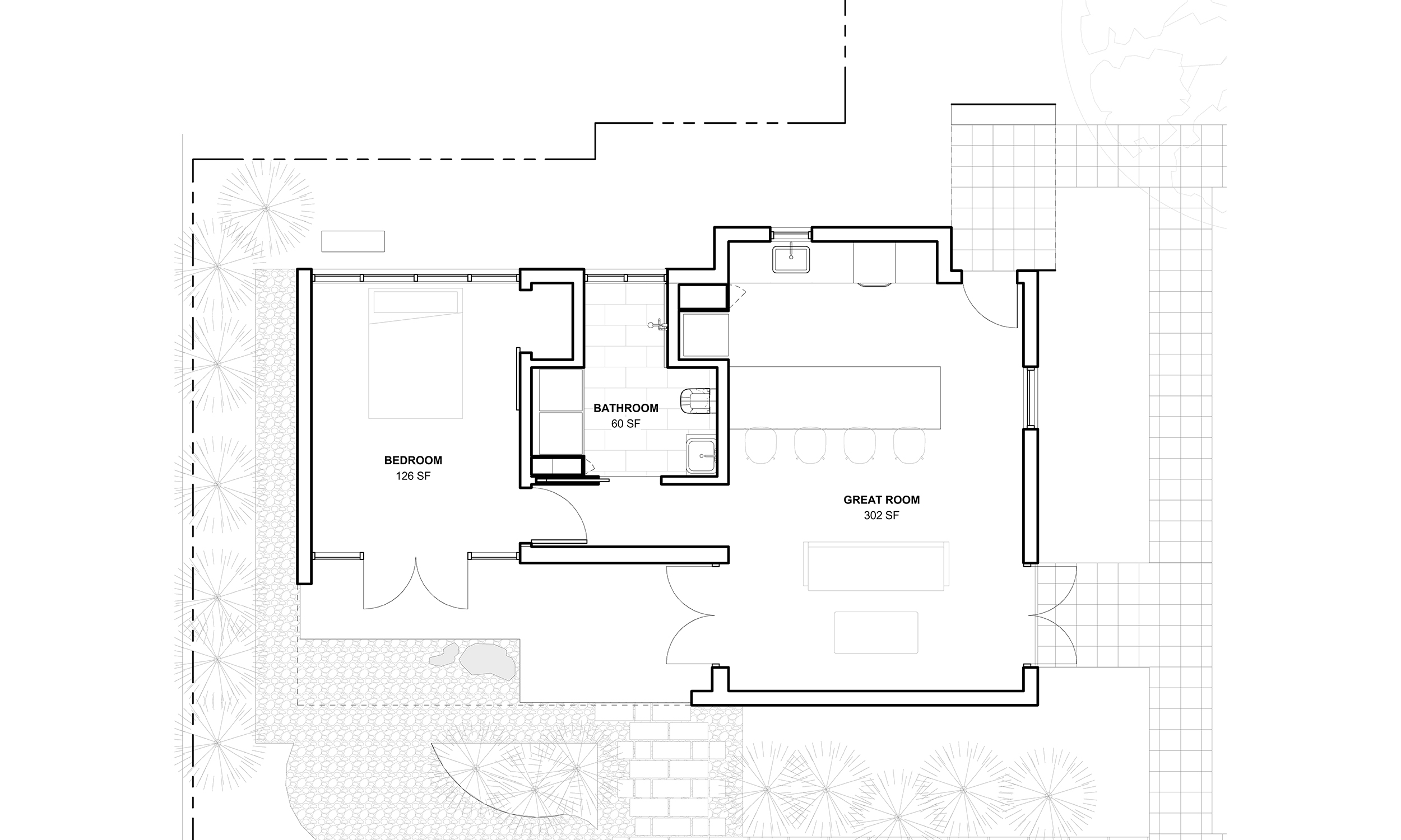
The goal was to keep the ADU compact and efficient while making it feel larger by developing a strong connection between indoor and outdoor spaces.
The interior is bright and open with large windows and doors providing lots natural light from all directions and allowing the space to be opened to the outdoors.
The client wanted a place to gracefully age-in-place, so we developed a single level design with minimal barriers within the ADU.















