
The Closest Church
YEAR
2015
LOCATION
Gimpo-si, South Korea
CATEGORY
Cultural › Religious
THE CLOSEST CHRUCH
STAIRWAY MORE CLOSELY TO HEAVEN
Buildings of the Gimpo new town, where everything looks as new, clean and as fresh as fishes caught in a milk bottle. Well-structured roads and districts look like a checkerboard that has never been used
Through local communities, this place is where ordinary lives and sentiments have just started to settle down and will attempt to engage with different urban cultures and establish its own identity.
The closest church is sitting on a corner site of Unyang-dong, Gimpo. Words like corner, edge and vertex connote the existence of more than one live or surface. The church has a facade divided by two conflicting with each other at the vertex of the site.
One is a solid and fragmented concrete, proposed by considering the relationship with apartment residents, and the other is a transparent glass that open views to the vast park and also to the church’s worship services.
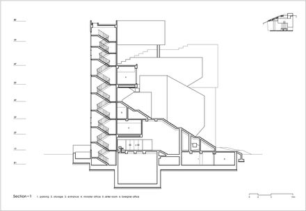
The chapel structured like the bleachers is designed to increase the capacity of the space built on a compact site.
Small rooms are positioned behind of the inclined surface of the bleachers and on the top section of it so that the church can make the best use of its space.
Especially the outside stairs connecting the ground and the rooftop works as an important element defining the exterior church, and the vivid movement of its users makes the church’s architectural statement more dynamic.
The rooftop space which can host outdoor worship services is open for church communities as well as for locals.
The closest church is a place of worship, a cultural venue and public architecture for the local apartment community which was being choked by commercialism.
The closest church is a place of worship, a cultural venue and public architecture for the local apartment community which was being choked by commercialism.
A rooftop cross can’t be found here, but here the cross is leaning on the wall and speaking with a humble voice
Big resonance stirs among listeners rather than among speakers who deliver a moving story, and the sublimity dwell in intimacy not in hierarchy.
The cross descended onto the earth will cast a shadow like a shaded tree and will share a story of life with people on the street.




























