
=The Home Building at Thaden School
YEAR
2020
LOCATION
Bentonville, AR, United States
CATEGORY
Educational › High School
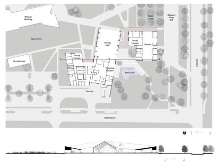
The Home building is a central link at Thaden School, a new high school campus in Bentonville, Arkansas.
Prior to designing the building, the design team led the creation of a holistic Master Plan, one that would guide the school in the development of its campus. The founding vision for Thaden School sought to challenge traditional paradigms of education.
The school developed its pedagogy around three signature programs: Reels (where narrative and visual communication come alive through the production of film and video), Wheels (where physics and mechanics come alive through the construction and use of bicycles), and Meals (where biology, chemistry, and community come alive through the growing and preparation of food).
In this vein the school envisioned a series of “makerspaces,” corresponding to each of the three individual programs, to augment learning as extensions of the classroom. The master planning process was kicked off with a gathering of nearly thirty individuals from the school’s leadership, the design staff, and more than a dozen community organizations.
From these conversations, the design team ultimately developed the Home Building, the crux of the pedagogy’s Meals program. The building takes visual cues from the region itself, with board and batten facades and all wood construction incorporating the beauty of local, vernacular architecture.
Inspiration was specifically drawn from precedents in the landscape, notably the idea of the Ozark farmhouse. As the hearth of the campus, the Home building provides an expansive dining hall, where all of campus comes together for meals.
A concept to the overarching campus is that of indoor-outdoor relationships. This concept is embodied in the concept and site-planning for the Home Building. As the central space supporting the “Meals” program, the Home building sought to challenge default ideas of consumption and production.
Students take classes in a state-of-the-art teaching kitchen—one of the truly unique spaces in the Home building— one that deeply espouses the school’s “learning by doing” mantra. The adjacent landscape is a productive one. An “urban agriculture” program features fruit and vegetable fields, orchards, and planter boxes.
A working greenhouse is located within close proximity. The building’s design places sustainability central to students’ education.
This begins with an adjacent landscape that acts as a botanical textbook filled with a diversity of plants, flowers, and trees—tallgrass prairie, oak and pecan woodlands, bottomland hardwood forests, freshwater wetlands—a microcosm of the region’s native plant communities. Stormwater management (91% is managed onsite) is accomplished via a distributed strategy, with several detention areas across the site.
In the rear of the Home Building, an ever-present “water lab,” detains the majority of rainwater, while offering a unique “classroom outside the classroom”—an opportunity for students to learn directly via their surroundings. The building, much like the extended campus, strives to establish an innovative vision for the future, while reflecting the rich, pastoral heritage of the surrounding landscape.










