ARCHITECTS
Quang Vinh
COLLABORATORS
Vbmad
STATUS
Built
LANDSCAPE
Vbmad
CLIENTS
Mr. Thang And Mrs. Linh
DESIGN TEAM
Vbmad
CONSULTANTS
Vbmad
ENGINEERING
Vbmad
SIZE
0 Sqft - 1000 Sqft
BUDGET
$100k - 500k
LOCATION
Thăng Bình District, Quang Nam Province, Vietnam
YEAR
2021
CATEGORY
Residential › Private House
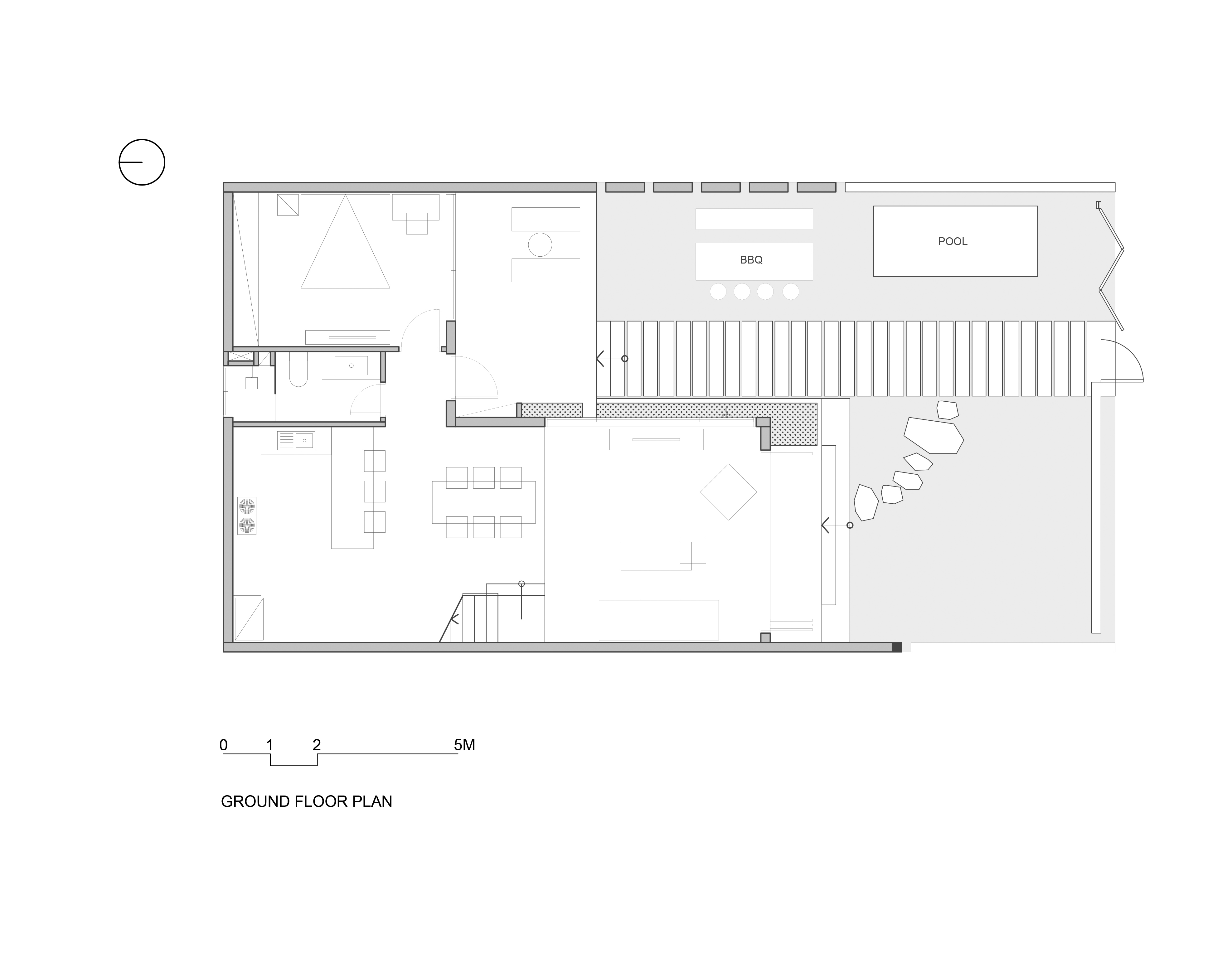
“Located in the middle of the coastal village of Binh Minh - Thang Binh - Quang Nam, with the characteristics of the sea, sandy soil, surrounding casuarina hills and warm people... the idea of a modern house, exalting the beauty of the local image. Appreciate what is most precious from this land.
The owner is a young couple with young children, wishing to order a simple house design, close to nature, friendly and have play spaces for their children.
From this request, the design team organized the space in an L shape, creating a large garden surrounding the house, a playground for the children and an open view of all rooms.
With the company's general design philosophy "Minimalism and deep into details".
The façade of the building is made up of a flat white area, segmented and square with rough details of the surface material, interspersed with a strip of large green trees.
The door area is opened to the maximum horizontally on all floors to create a view and exploit the good wind from the south, making the whole house harmonious.”



















