Hitachi City Hanayama Certified Child Center
YEAR
2019
LOCATION
Hitachi, Japan
CATEGORY
Educational › Nursery
The site is located on the outskirts of hitachi city, japan, which is on the hillside of a mountain with a gentle slope facing the sea.
We sought to build a house on satoyama so that the children would be embraced by the natural mountains.
This project was to consolidate two old kindergartens and establish the hanayama certified child center as part of the child-rearing support policy and the policy of optimizing public facilities in response to the declining birthrate, aging population, and declining population.
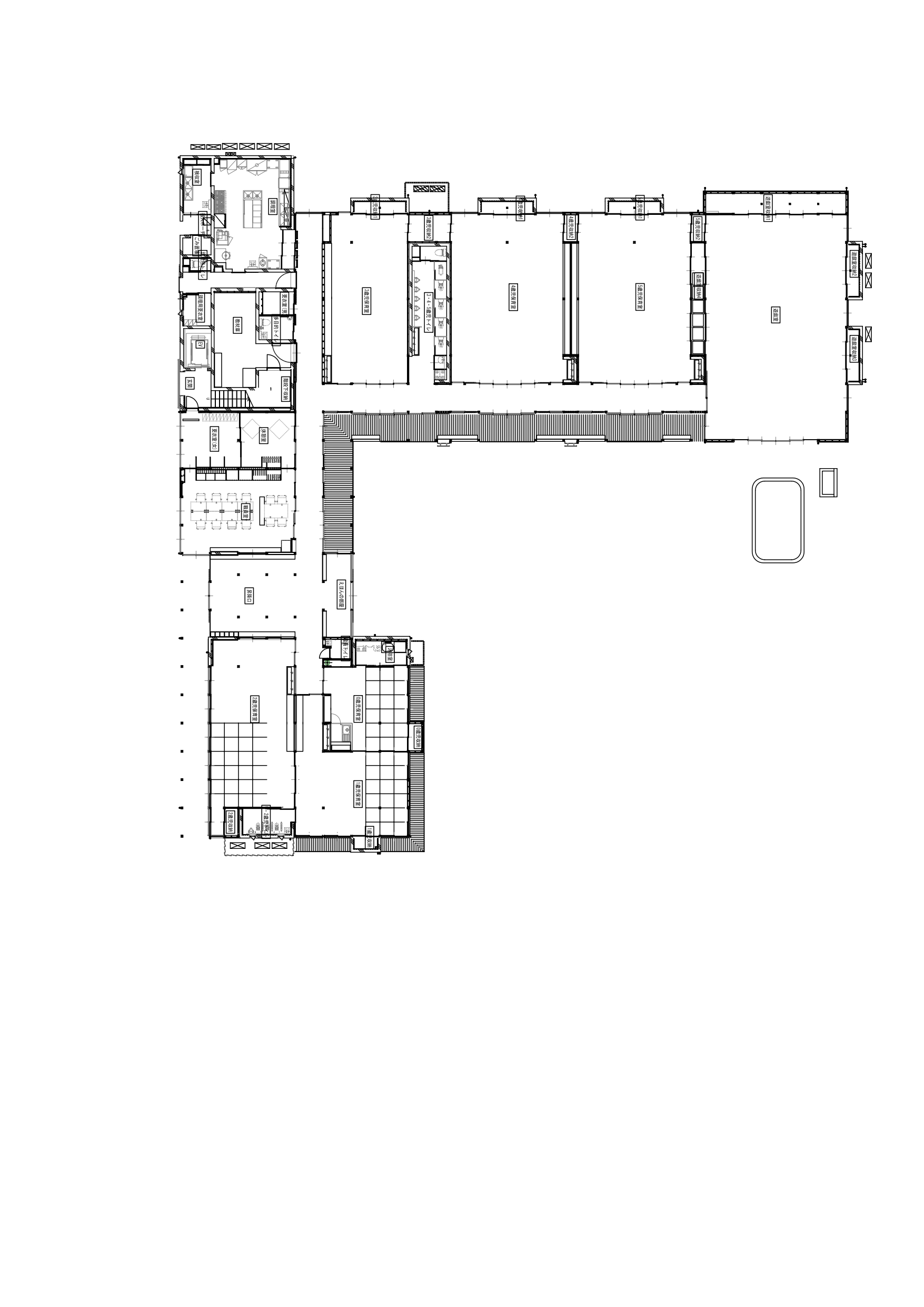
The new child center was arranged in an l-shape encompassing the south east of the playground (part of the existing kindergarten).
The main office, the entrance, and the classroom for children ages 0 to 2 are located on the west side and the playroom and classroom for 3 to 5 year-olds are located on the north side.
The hinged part of the l-shape was designed as a two-story building, with a lunchroom on the first floor and a childcare support room on the second floor.
Each nursery room was given its own roof to make it seem like a village of satoyama.
The house of the younger children on the west side has a square roof, the house of the older children has a gabled roof with a north to south oriented ridge, and an annex was built to connect the two.
In front of the nursery rooms run a hallway and open veranda, each 1.8 m wide, beyond which plenty of eaves space was provided.
Like the farming families in the past, when children commuted to here they also came in and out from the veranda to play on the playground.
The earthquake resistant elements are distributed and arranged similar to a reinforced concrete structure.
As a result, the shed area facing the playground is open and free of bracing or walls, which were common in japan in the past. It is expected that this child center will fully utilize the appeal of wooden architecture and become a driving force behind the shift to wooden public facilities.

























