
SOUTH MELBOURNE LIFE SAVING CLUB
BUDGET
$5M - 10M
YEAR
2019
LOCATION
Albert Park, Australia
CATEGORY
Cultural › Pavilion , Government + Health › Community Center
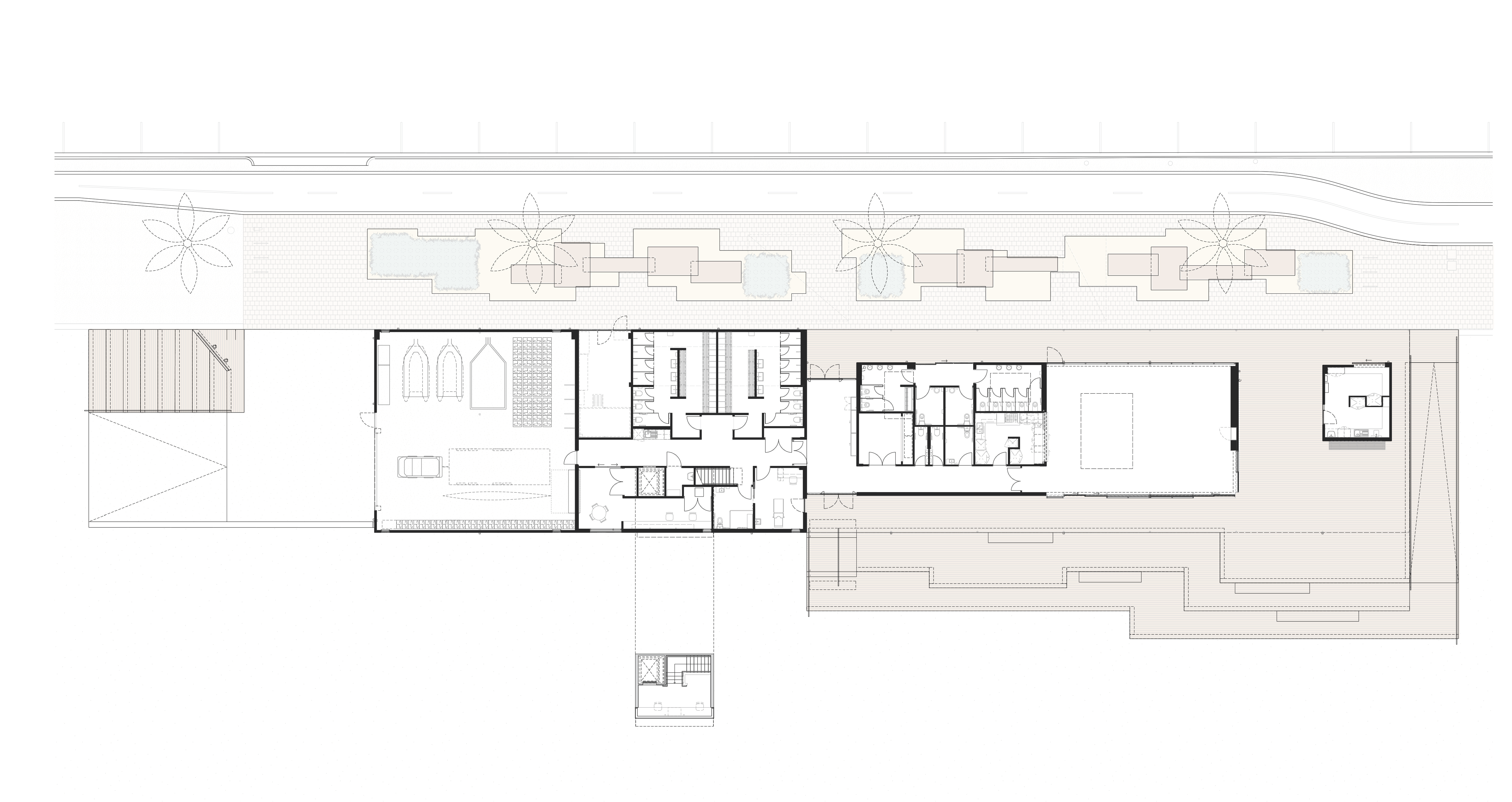
The South Melbourne Life Saving Club is a single level facility that responds to the linear nature of the foreshore stretching from St Kilda to Port Melbourne.
Both Beaconsfield Parade and the beach promenade are primarily concerned with linear north/south movement, which prompted the built form to celebrate this dynamic flow and the flatness of the horizon line beyond.
By accentuating these linear qualities, the low-profile roof minimises interruption to local resident views and creates a sensitive addition.
The siting of the previous two storey building restricted foreshore pathways, resulting in bike and pedestrian conflicts.
This was addressed by perching the building on the existing bluestone seawall edge to create a full-width forecourt allowing separate pedestrian and cycle paths and landscaping / seating opportunities. This configuration promotes a bottle-neck-free thoroughfare.
JCB wanted the building to feel open and accessible and the transparent multi-purpose room and covered deck encourage views to the bay and opportunities for pause.
To enhance the popular recreational destination, generous terraced decks spill from the verandah down to the beach, providing ample opportunities to enjoy the environs.
Pop-up roof lights of varying sizes playfully maximise internal volume and light, while doubling up to conceal roof services and plant equipment.
They playfully reference boating activity and are coloured like faded beach towels, surfboards and sunburn evoking happy memories of bygone summers.
The proposal integrates several passive and active measures to achieve multiple sustainable outcomes.
The low roof line creates deep shaded eaves to keep direct sunlight off the glass for much of the day.
Cross flow ventilation is encouraged through the narrow plan form and vented louvered windrows in the popup skylights.
The project achieved Five Star Green Star accreditation. Beyond this, further sustainable initiatives have been implemented, including a 36kW solar photovoltaic system designed to offset all greenhouse emissions on an annual basis.
Best practice for urban storm water quality was also applied, with the use of 48,000 litres of storm water tank storage. Live electronic display screens calculate and display the building’s overall water and energy savings achieved by the PV solar array and stormwater systems.
The building has made a positive impact to the greater South Melbourne shoreline, providing contemporary facilities for the club as well as encouraging community interaction, accessibility and amenity.


















