Hampstead House
ARCHITECTS
Dominic McKenzie Architects
AREA
5000 sqft - 10,000 sqft
YEAR
2019
LOCATION
Greater London, England, United Kingdom
CATEGORY
Residential › Private House
The renovation of a large Victorian property in Hampstead creating a luxurious and sophisticated family home.
Dominic McKenzie Architects’ work has involved the restoration of the entire original building and a new extension to the rear of the house.
The design of the new extension takes its cues from the triangular gable-end profiles of the main house and surrounding architecture.
It is clad in bespoke bronze tiles, the material being chosen to blend tonally with the existing brickwork of the main house and to allow a single material to be used for both walls and roof.
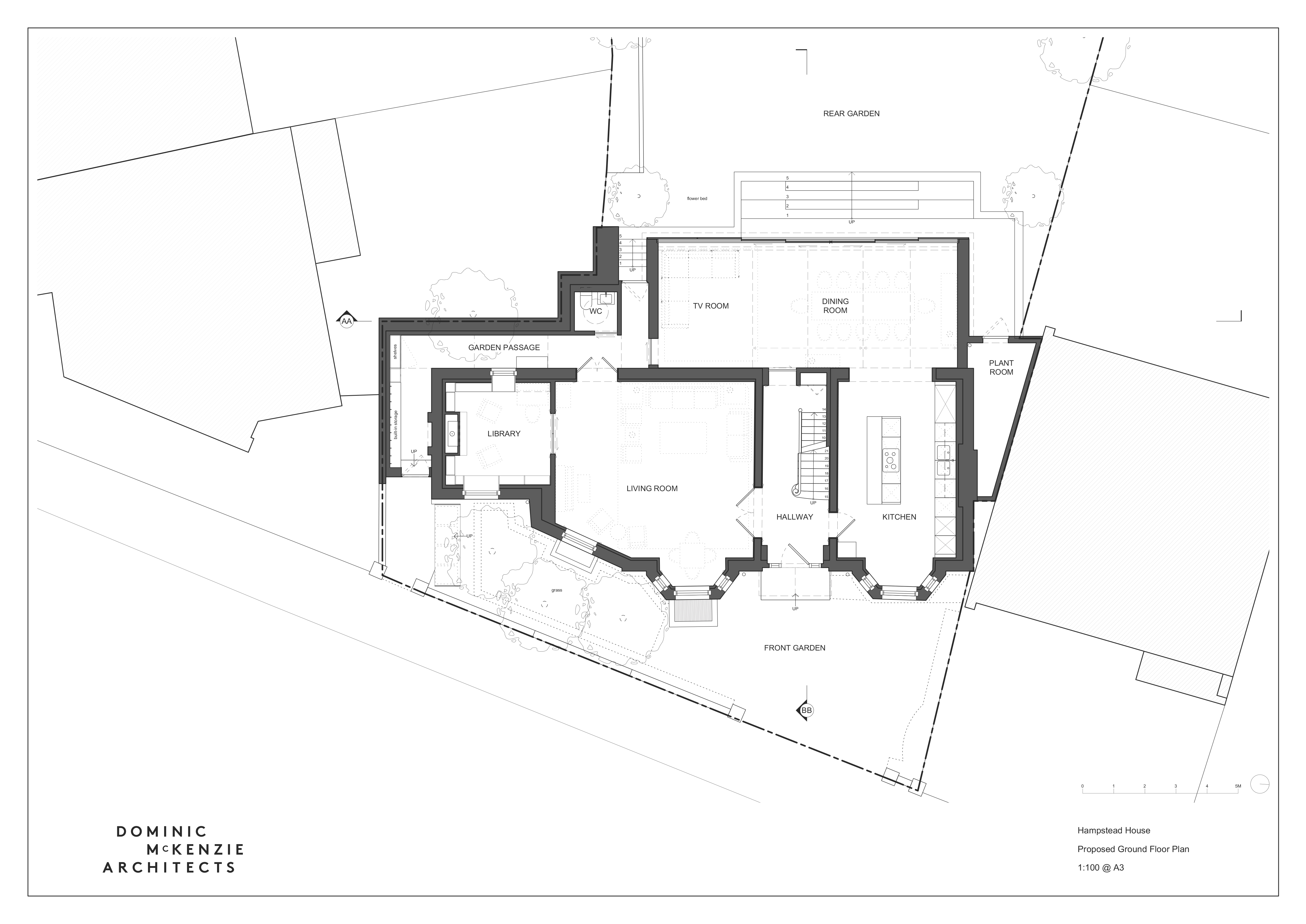
At ground floor level continuous glazing in the dining room and living area allow uninterrupted views of the rear garden.
Seen from the rear, the interior space to the left follows the triangular roof profile to create a greater feeling of generosity over the dining table.
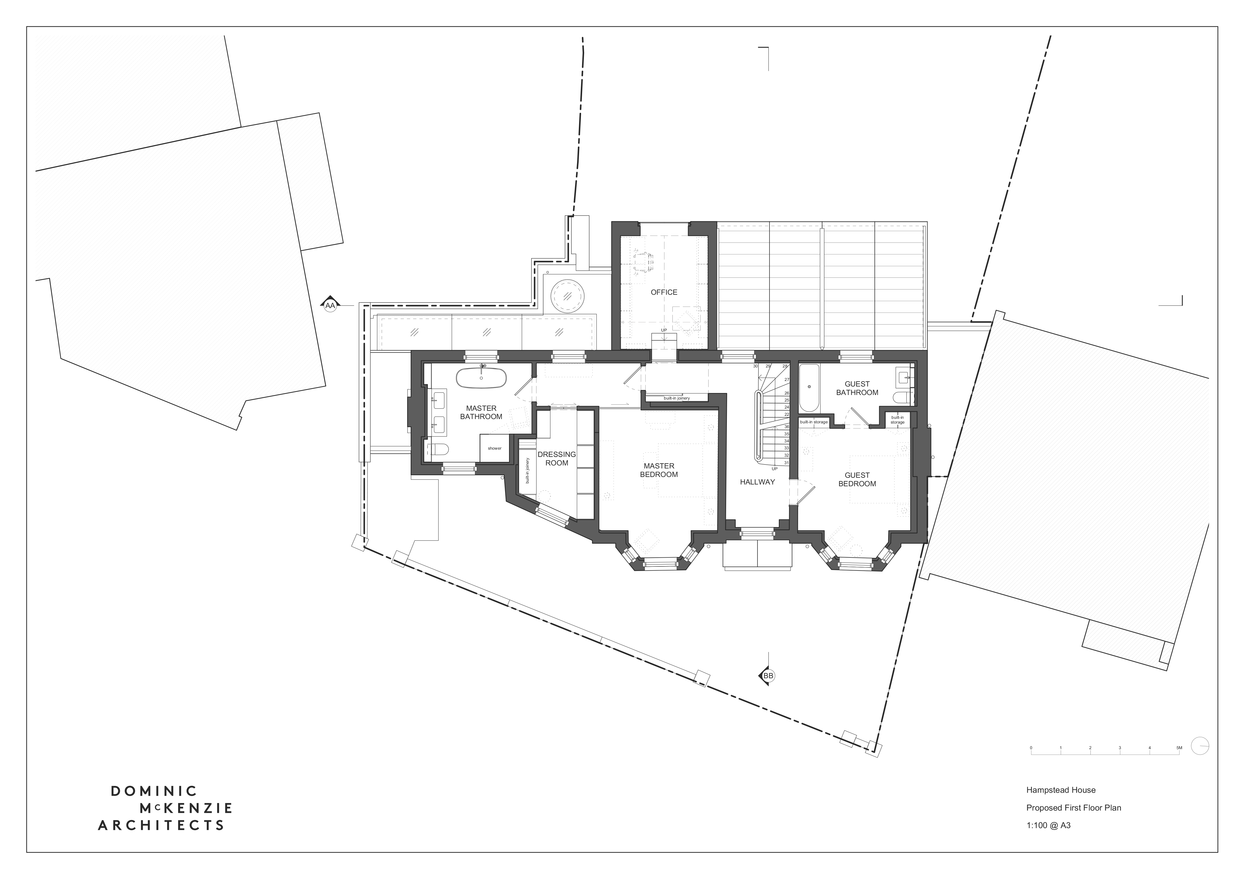
To the right, the upper part of the extension contains an office space with a large openable picture window framing the garden, beneath which is an informal living area for reading and watching TV.
The extension’s walls and ceilings are lined with maple to create warm and comfortable garden rooms at both ground floor and in the first floor office.
To the side of the house, the new rear extension connects to the glass-roofed Garden Passage which provides secondary access to the rear garden from the front of the house.
The interior of the original building has been extensively and carefully restored, following insensitive previous renovations.
A new, but historically accurate stair from basement to second floor was reinstated in its original position having been removed by previous occupants.
Similarly doors, cornices, architraves, skirtings and ceiling roses etc. are new but have been carefully considered to be as historically accurate as possible.
Key rooms include a walnut-lined library and work space which opens off the main living room.
The kitchen is in pale grey with a matching grey marble island and splashback. The master bathroom is lined with travertine.


































