
ICÔNE Collaborative Office Complex
ARCHITECTS
Foster + Partners
ASSOCIATE ARCHITECTS
BFF Architectes
LOCATION
Luxembourg
CATEGORY
Office Buildings, Cowork Interiors
Text description provided by architect.
Foster + Partners has completed ICÔNE, a new office complex in Belval, Luxembourg. The 18,800-square-metre office building, filled with light and greenery, encourages a spirit of co-creation and collaboration.
Its layout addresses the need for flexible and safe working environments that will emerge in the future. It also references the rich industrial heritage of Belval, revitalizing the area by making a positive contribution to the site and its surroundings. The scheme is targeted to achieve a BREEAM Excellent rating.
ICÔNE is located in Belval, a new city quarter combining research, education, leisure, and commerce. The scheme relates to the scale of neighboring buildings and addresses the different characteristics of the surrounding streets.
Its entrances are articulated differently in response to Porte de France, the main urban street to the west, and the Place de l'Académie to the East. New shops, cafés, and restaurants will bring life to these entrance elevations at pedestrian level.
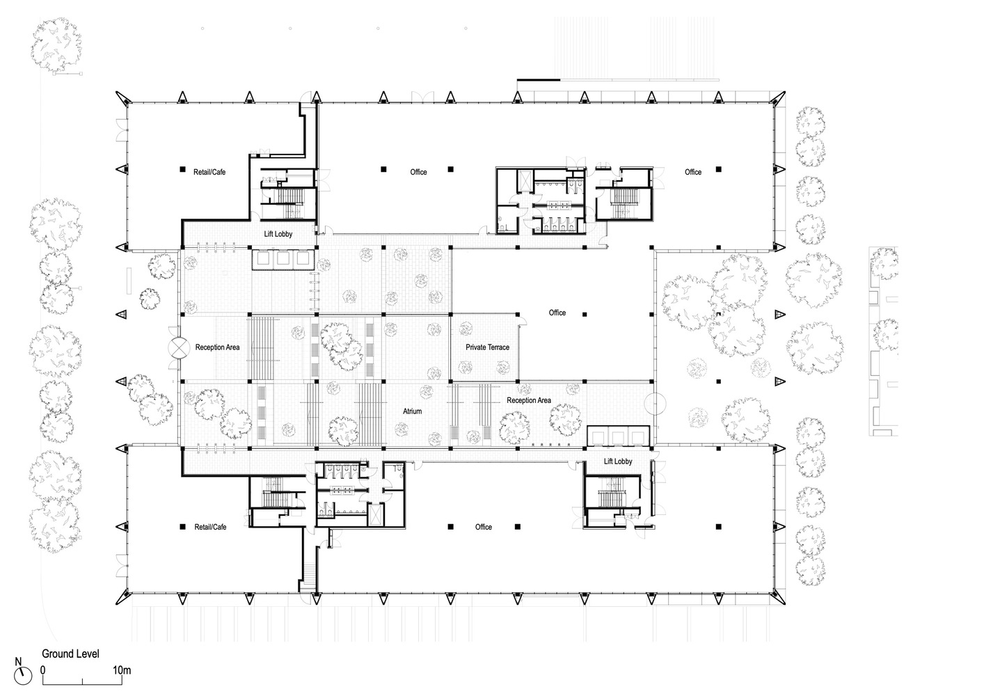
Designed in collaboration with local practice BFF architectes, the building is arranged as two wings enclosing the central atrium, wrapped by a distinctive orthogonal façade and roof which emphasizes the structural grid and gives the building appropriate to its industrial setting.
The historic and symbolic Belval blast furnace forms the central focus of the dramatic vista from the atrium.
The fluidity of the internal space contrasts with the building’s formal exterior. The atrium resolves the level changes between the street and the plaza through a series of stepped terraces which create a spectacular arrival sequence.
The open circulation adds to the vibrancy of the internal spaces, with communal green landscaped terraces for informal meetings and break-out spaces at higher levels as part of a rich and varied whole.
The façade is both structural and environmentally responsive, providing an integrated solution that allows for internal column-free office spaces as well as solar shading and maximized internal daylight.
The external façade benefits from a series of external green loggias, visible from both the inside and outside of the building.

























