
Khao Niao Restaurant + Onda Cafe
ARCHITECTS
Aswa
LEAD ARCHITECTS
Phuttipan Aswakook, Chotiros Techamongklapiwat
PERSON IN CHARGE
Prassapol Sanguanwattanaraksa, Tharittipan Trakulhae, Visarut Vongjirasak
CONTRACTORS
Cck Property Co.,ltd
PHOTOGRAPHS
Phuttipan Aswakool
AREA
290 M²
YEAR
2022
LOCATION
Bangkok, Thailand
CATEGORY
Coffee Shop, Detail
English description provided by architect.
A wavy precast concrete facade formed by an onsite concrete mold for a new restaurant designed by ASWA for Khao Niao restaurant + Onda cafe around Ari, Bangkok, Thailand, surrounded by residential buildings with some restaurants and cafes.
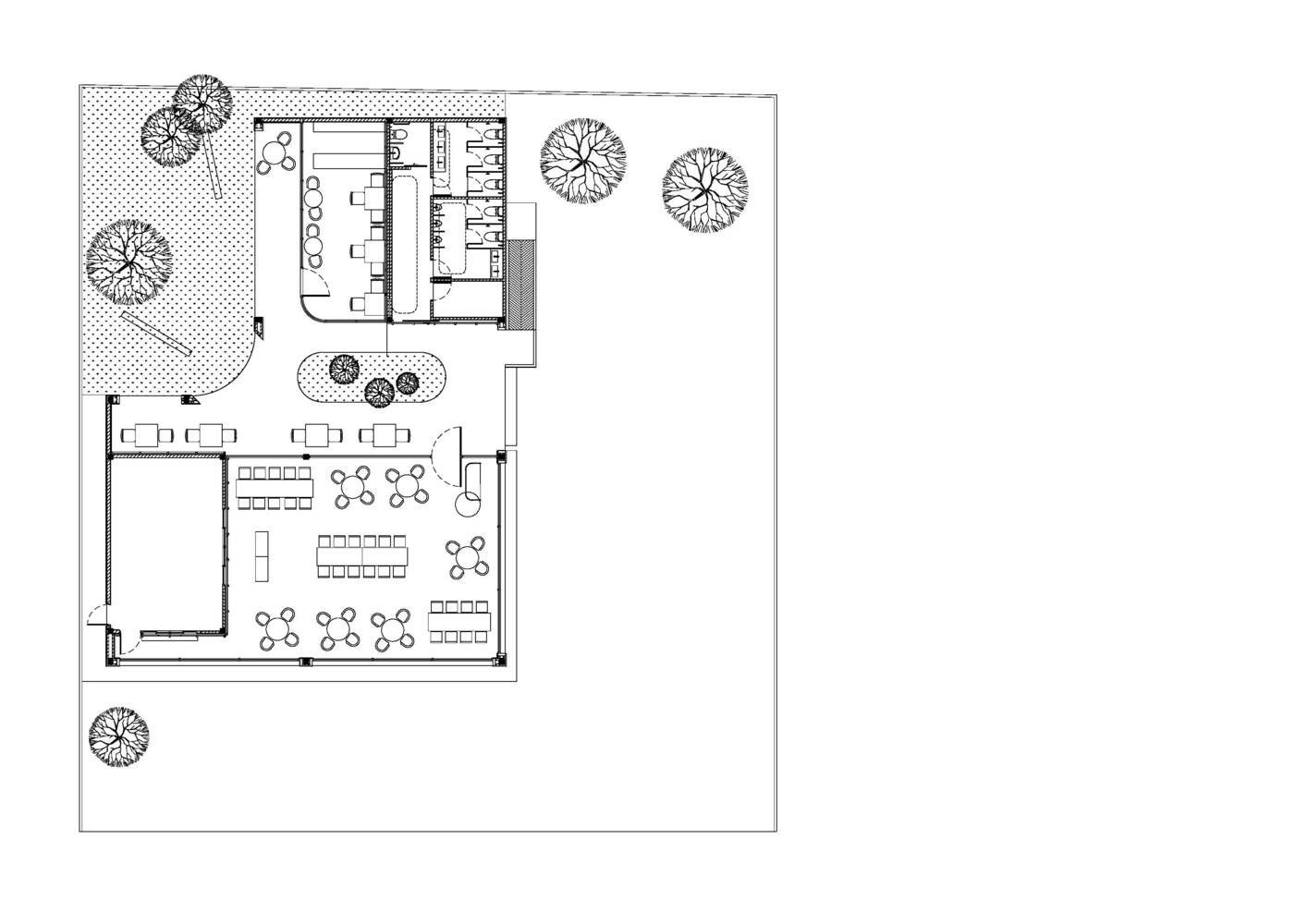
The L-shaped one-story restaurant with approximately 290 square meters tends to hide a private courtyard for a peaceful space from the street.
The Khao Niao restaurant + Onda cafe aims to be a new node for the high density of its area by creating a new destination in its neighborhood.
the main restaurant with the kitchen and the cafe with all service areas, divided by the central semi-indoor courtyard from the main entrance.
At the same time, both spaces can celebrate the view of the enclosed courtyard altogether— this courtyard can arrange small events.
Meanwhile, for a cursory glance, the unique facade metaphorically represents the wave-like (Onda means Wave in Italian) all along the building's elevations.
As mentioned before, wavy precast concrete is the main material of this project.
In a site experiment, the contractor uses a standard corrugated roof tile as the primary mold casting of 1.20 x 2.40 square meters in a modular size.
Then tile modular all together to create a large 6x8 square meters onsite concrete mold on the ground, which operates as a master mold casting to cast all facade panels.
Then, the half-circle voids are applied as openings on the facade to scoop out the solidity of concrete, reveal the wooden interior space, and allow the natural light to brighten the space.






























