
Bovenbouwwerkplaats Transformation
RSIGN TEAM
Albert Herder, Vincent Van Der Klei, Arie Van Der Neut, Metin Van Zijl,
Wouter Hermanns, Erik Hoogendam, Ruben Visser, Karlijn De Jong
YEAR
2022
LOCATION
Utrecht, The Netherlands
CATEGORY
Adaptive Reuse
Text description provided by architect.
The impressive workshop building – in which heavy elements for the Dutch railways were manufactured – was built in 1905. Until recently, the building lost more and more of its original architectural qualities and functions.
Maintenance was deteriorating, new constructions around the building obstructed the view of and from the workshop and the structure was in need of renewal.
By reinterpreting the original qualities of the place while adding a number of contemporary elements, we revived the building into a space full of wonder.
Studioninedots, in collaboration with DELVA, is also designing the Utrecht development area Wisselspoor, of which section 1 surrounds the Bovenbouwwerkplaats.
With Wisselspoor, we committed to our own Cityplot concept, which involves developing unexpected locations into lively urban neighborhoods in an organic interaction with residents.
The core feature of a Cityplot neighborhood is the 100-by-100-meter plot. Small and medium-sized buildings are organized at the edges of the plot, creating opportunities for truly high-quality and green public space in the heart and between the buildings.
Cityplot neighborhoods are low in traffic, further protecting the quality of the outdoor areas.
By merging a wide range of ambitions and functions that are normally spread across an area into the Bovenbouwwerkplaats, a small-scale urban core where anything can happen is formed.
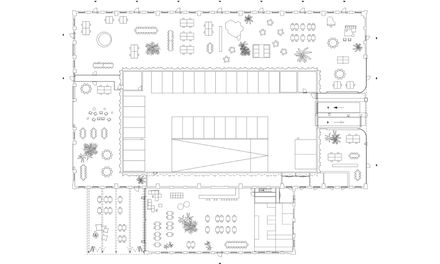
Underneath the existing roof, we created one open space that will be home to new neighborhood facilities and creative entrepreneurs. The space stimulates the senses yet invites your own interpretation of its use.
A cut-out from the existing structure in the core has made room for a completely new orthogonal volume, perceptible both indoors and externally. This object houses a five-story mobility hub for 175 (shared) cars and bicycles.
To set a firm architectural gesture, we introduced the Curtain, an abstract and shiny skin that fully encloses the new object. The Curtain gives the volume a scalelessness, making it appear lower and less massive from the outside than it truly is.
Relics in the building, such as existing installations, pipes, and even damages, were preserved. We filled in the original vertical window openings with transparent glass, which, together with the large, curved glass walls all around, maximize the connection with the neighborhood.
The entire floor area is flooded with natural light during the day through the transparent roof. Due to the ample light in the building, the continuation of the abstract object within the building can also be clearly seen from the outside.
Our transformation restores all the industrial qualities of the old warehouse – its skeleton, roofs, external facade, and detailing.















