
FlockHill Homestead
ARCHITECTS
Warren & Mahoney
PROJECT ARCHITECT
Simon Laurie
MANUFACTURERS
Simon James Design, Monmouth Glass, Nightworks Studio, Quadro Design, Treology
PROJECT MANAGEMENT
Inovo
INTERIOR DESIGN
Jessica Close
STRUCTURAL ENGINEERS
Ruamoko
SERVICE ENGINEERS
Tm Consultants
LANDSCAPE DESIGNERS
Rough Milne Mitchell
PROJECT PRINCIPAL
Jonathan Coote
DESIGN TEAM
Marc Honore, Sebastien Gapinski, Tim Hervey, Joseph Hampton, Margie Phillips, Rita Scott
VIDEOGRAPHER
Aidan Rogers
PHOTOGRAPHS
Barry Tobin
AREA
940 m²
YEAR
2022
LOCATION
New Zealand
CATEGORY
Houses
Text description provided by architect.
Flanked by mountains, nestled into limestone rock formations, and looking across Lake Pearson to a perfectly symmetrical view of Sugarloaf Mountain is Flockhill Homestead, designed by Warren and Mahoney.
Elevated within a valley alone in the landscape, the Homestead is settled within 36,000 acres on a high-country station. Flock Hill Station itself derives its name from these rock formations.
Our design celebrates and references the early habitation of the landscape by adopting an architecture that consists of heavy masonry elements embedded in the landscape.
The most striking and recognizable feature of the area around Flock Hill Station is the famous limestone rock formations jutting out of the landscape – named Castle Hill.
For Ngāi Tahu, it was an important stopover point on journeys to the West Coast, and a seasonal food-gathering place. The numerous rock overhangs were used for shelter.
The privilege of working on a site steeped in storytelling was not lost; with the project team adopting an ‘arts meets science approach.
“We had this incredible history of how the site had been inhabited previously – hundreds of years ago – alongside the environmental considerations associated with an alpine environment.
We wanted to create something that could provide a sense of safety and retreat from the mountainous elements while still feeling fully immersed in the dramatic landscape,” says project principal Jonathan Coote.
The design for the Homestead adopts an architecture consistent with heavy masonry elements embedded into the landscape. Our approach combines weight to the base, complemented by a soaring lattice structured timber roof that floats above the heavy masonry elements.
“The simple pitched roof form is a reference to the agricultural use of the area and the utilitarian but beautiful farm structures and sheds that dot the local landscape
It gives the building a sense of lightness and connection externally and texture and warmth internally. It also enhances the experience of the 'weight' of the limestone elements.
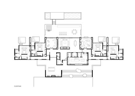
The homestead is designed to be used in a fluid way, with an almost continuous connection between internal and external spaces. It comprises a simply pitched roof pavilion with central living areas and guest quarters on both sides.
All spaces are arranged in a single linear strip, ensuring the views over Lake Pearson and Sugar Loaf beyond are never lost.
Internally, the material palette is intentionally restrained – with only tinted concrete cast in slim layers, limestone flooring, and timber used to frame the spectacular views.
The property is managed by Andrew and Sandra Cullen who are vastly experienced in luxury accommodation. “The Homestead is elevated within a valley alone in the landscape overseeing life in the Southern Alps.
Settled within 36,000 acres on a high-country station, it is the ultimate playground for those who enjoy relaxed comfort but have an adventurous spirit”, says Cullen.
“Flockhill inspires adventure and exploration due to the magnificence of the property. Being able to share our passion for our surroundings and offering guests adventures within the station, where space is yours to embrace, is something we look forward to.
The vibrations from the area which the Dalai Lama called ‘the spiritual center of the universe is sacred, not just to the sheep flocks on the hills from hence we got our name.”





















