
The West Residence Club
CIVIL ENGINEER
Stonefield Engineering And Design Llc
STRUCTURAL ENGINEER
Gace Consulting Engineers
GENERAL CONTRACTOR
Cma Construction Management
LANDSCAPE ARCHITECT
Twin Landscape & Construction
PROJECT TEAM
Erikjan Vermeulen, Iwan Hameleers, Jolijn Vonk, Matthijs Hombergen, Sofie Ruytenberg, Daisy Koppendraaier, Mark Haenen, Debbie Van Dijk, Carlijn Stadig, Joshua Boyd, Natalia Kozyra, Mieken Billekens
EXECUTIVE ARCHITECT
Ismael Leyva Architects
BRAND DESIGN
Pandiscio Green
GRAFFITI EXTERIOR WALL
Tony “rubin” Sjöman
SHOPFITTER COMMUNAL SPACES
Roord Interior Works
MARKETING & SALES AGENT
Corcoran Sunshine Marketing Group
LOCATION
New York, United States
CATEGORY
Mixed Use Architecture, Apartments, Retail
Text description provided by architect.
The West Residence Club is located in Hell's Kitchen, one of Manhattan's most sprouting neighborhoods. The neighborhood is known for its industrial character and its rich, colorful history, which combined, create an unmistakable mystique.
Today it offers varied urban architecture from brick warehouses and low-rise showrooms to open parking lots and original townhouses.
Its unique mix of residents, companies, independent shops, and small restaurants has made it into a dynamic neighborhood.
The West Residence Club is meant for explorers who want to live in a building that reflects the unpolished history and character of the Hell's Kitchen area.
It introduces a new way of living; its condos – a mix of studios, 1and 2+ bedroom apartments – are smartly designed from the inside out to create the best residential experience, enhanced by extensive communal spaces and outdoor areas.
The base of the building offers a loft-type experience, with a robust brick facade referring to both the warehouse character of the area as well as the townhouses in the side streets.
The super light and airy apartments on the top floors are designed to make the most of the views over Manhattan Skyline and the Hudson River.
The U-shaped building stretches from the corners of 47th Street and 48th Street along 11th Avenue.
The 7-story brick base of the building is an extension of the townhouse-like character of the two streets and connects to the brick warehouse architecture of the avenues. The brick facades are carefully crafted in rich detailed patterns.
Both the bricks and the patterns were custom-designed and hand-made specifically for The West Residence Club in collaboration with upcycling company StoneCycling.
The brickwork combined with large industrial windows creates street-oriented, typical NY loft-type studios and 1-bedroom apartments on the lower floors.
Inspired by the social function of New York-style stoops, the main entrance of the building is formed by a small entrance plaza that forms a smooth transition between the public street and the private building. The plaza has different seating facilities embedded in green that encompass a central tree.
Higher up in the building, it is all about the cosmopolitan life that New York is famous for, with views over New York's iconic skyline and the sunset over the Hudson River.
Glass boxes that pop in and out of the building create unique views and orientations in each apartment and provide every unit with a large private terrace.
This results in a lightweight, transparent, and almost cloud-like architecture that reflects the unique experience each of the apartments offers.
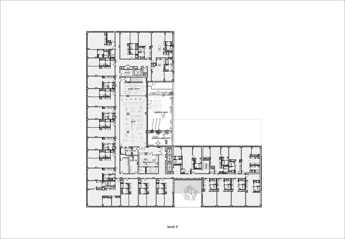
The amenities at 547 West 47th Street bring the residents together to form a thriving community known as The West Residence Club.
It includes specific areas to work, a glass house in the backyard, a double-height gym, a playroom for kids, and two in-house hotel-style guest rooms that can be booked for visitors.
The 8th-floor roof deck accommodates a rooftop field and pocket park including a dog run, an outdoor kitchen, and an indoor communal kitchen and dining space.
On the top roof, an extensive pool deck is combined with BBQ pits and communal seating areas under a wooden pergola to enjoy the sunset and extensive views over the Hudson River and Midtown Manhattan Skyline.
All of these spaces are created to enhance comfort, facilitate functionalities for residents, and foster interaction between them.
The design also involved a special focus on dedicated workspaces to facilitate working from home, including a full glass greenhouse in the garden filled with bookshelves, a fireplace and a large worktable, and two meeting/working rooms stacked with office supplies and equipment.
Interaction between residents is further fuelled by the communal kitchen – to be programmed with food gatherings – further fueled by a dining room and adjacent outdoor kitchen.
A major focal point of the building is the craftsmanship of the construction and design; bespoke interior and exterior elements create a sophisticated atmosphere in which every detail matters. This includes a 5-story custom mural, created by artist Rubin.
This craftsmanship comes to a culmination in the intricate brickwork of The West's facade, the result of a collaboration between Concrete and StoneCycling, a Dutch firm committed to the sustainable manufacturing of upcycled bricks.
The brick matrix itself is a proprietary mix of recovered construction debris blended with raw clay quarried in The Netherlands.
A total of forty different brick shapes and sizes were required for the project, and each piece was individually hand-brushed with a subtly reflective glass glaze before being fired in a centuries-old factory.
The unique glass glaze creates a variety of shades and glossiness during the day, resulting in a different read of the building every time one sees it.
This complex process is just one example of the perfectionist approach applied to architecture and the interior.
All efforts are dedicated to creating a building that pays tribute to its location and creates a memorable and unique experience for its residents.



































