Office in Shimabara
ARCHITECTS
Design Associates Nakamura
LEAD ARCHITECTS
So Nakamura
PHOTOGRAPHS
Keishin Horikoshi / SS Inc
AREA
150 m²
YEAR
2022
LOCATION
Nagasaki, Japan
CATEGORY
Offices
Text description provided by architect.
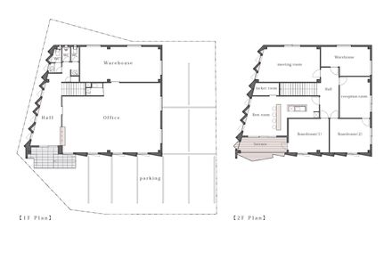
The site overlooks Shimabara Port and Mt. Unzen, so we planned an office where people can work while enjoying the view.
By slanting the exterior wall, we planned to block the view from the street while at the same time securing the view.
The rhythm of the slanted exterior walls and random openings create a facade design that is not monotonous but varied.
The slanted exterior wall plays the role of a niche in the interior, and by randomizing its size and position, a space with change was created.




















