
Daqing West Integrated Highway Passenger Station
ARCHITECTS
Had Architects, Studio A05
LEAD ARCHITECT
Jiajun Tang
PHOTOGRAPHS
shuxiang Wei, Jiajun Tang
AREA
12780 M²
YEAR
2022
LOCATION
Daqing, China
CATEGORY
Transportation Hub
English description provided by architect.
Daqing West Integrated Highway Passenger Station is located in Ranghulu District, Daqing City, Heilongjiang Province.
The specific site is on the north square of West Daqing Railway Station. Daqing West Integrated Highway Passenger Station is an attempt at a "zero transfer" design under the concept of a hub cluster.
In the project, the highway station and the railway station use, to the greatest extent, various traffic lines to form an interconnected, complementary motor-rail multimodal transportation network.
The planning and construction of Daqing West Integrated Highway Passenger Station were after the completion of West Daqing Railway Station.
In the initial design of West Daqing Railway Station, the South Square was made into a landscaped square, highlighting the characteristics of West Daqing Railway Station as a landmark of the city.
Based on the operation status of the north and south squares of West Daqing Railway Station, the design team boldly put forward in the design process of the Integrated Highway Passenger Station on the North Square the integration of the railway and highway station buildings, and landscape and functions corresponding to the South Square.
The urban traffic distribution function guided by the station building is highlighted on North Square.
The highway passenger station and the railway station are interconnected in a three-dimensional way-- through an underground corridor, an above-ground corridor, and a ground square.
The final design highlights the division and combination of highway and railway functions, integrates various traffic lines of Pick up & Drop off, and forms a clear pattern of the zoning plan for different kinds of traffic vehicles around the new station.
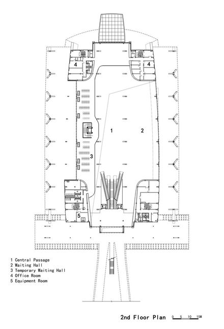
Inside the building of the highway station is created a central lobby-- an indoor north-south corridor constitutes an entrance/exit passage between the railway station and the highway station.
At the same time, the central lobby connects different outdoor traffic functions, so that passengers can be effectively distributed and facilitate them to choose the means of transportation they need.
Based on the shape and function positioning of the highway passenger station, a full-steel structure was finally adopted as the overground part to show the harmony and unity between shape and structure.
The main passage space of the building is consistently treated with the indoor and outdoor shape of the surrounding canopies.
In structure, a combination of oblique Y-type vertical support and curve horizontal support is adopted, forming a simple and beautiful structural design language indoors and outdoors.
The highway station building and the railway station building are connected by an outdoor steel structure corridor, which is vertically supported by oblique steel columns, creating a flexible and lightsome exterior appearance.

































