
Dobra 55 Modern Languages and Applied Linguistics Building
Dobra 55 Modern Languages and Applied Linguistics Building
Kuryłowicz & Associates
ARCHITECTS
Kuryłowicz & Associates
MANUFACTURERS
Kip
STRUCTURAL ENGINEER TEAM
Fundermax, Rako, Alteza, Aluprof, Aurubis.trespa, Ivc Carpets, V&b
PHOTOGRAPHS
Nate Cook Photography
AREA
42000 M²
YEAR
2022
LOCATION
Warsaw, Poland
CATEGORY
Laboratory, Educational Architecture
Text description provided by architect.
Dobra 55 has become a pioneering new home for language education where the University of Warsaw has consolidated its varying requirements into a single sustainable center of excellence.
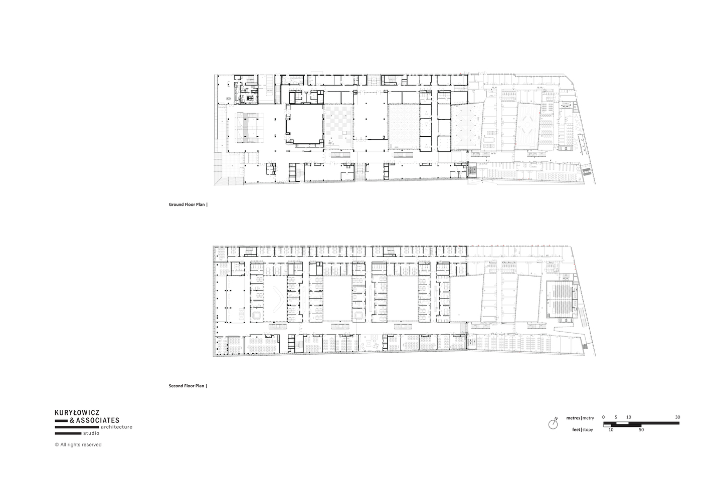
The new 42 000 m2 building includes 92 ‘language labs’, 70 administrative rooms, 39 research and development rooms, 7 conference rooms, recreational spaces, a multimedia room that can accommodate 150 people as well as a library and reading areas, the project unites the universities’ linguistics departments into one location and brings a high level of transparency to the traditionally enclosed urban courtyard block, creating a green heart for the Powiśle riverbank district campus community.
The recently completed new extension (phase II) for the Modern Languages and Applied Linguistics building has four overhead and two underground levels with a gross area of circa 28 700 m², which is nearly twice as big as the first phase of the building which has also been designed by our studio and completed in 2012, with an area of 13 500 m2. Both phases constitute one unitary building structure.
Embracing the university by connecting the main campus with the riverside neighborhood and its much-loved library, the transparent facade opens the building up to its immediate neighborhood and its surrounding nature.
Its ul. Wislana street's elevation with a shimmering glazed skin, which exposes its concrete structure and which is punctured by a series of courtyards, the design bursts with communal energy.
Accessible to all, the building provides a generous urban entrance in which the street corner is set back to form an entrance plinth and breakout spaces for every visitor to the building.
Next, the spatial sequences continue with a flight of theatrical stairs which form a backbone and a social ‘connector’ throughout the remaining floors.
This ‘connector’ starts at the street level and ends at the rooftops of the neighborhood with views over the city.
The building not only strives for state-of-the-art teaching facilities, but also for an innovative way of tackling climate change.
It does so via renewable energy and energy-saving solutions. These include heat pumps with ground heat exchangers and the use of photovoltaic panels.
The project also incorporates the use of energy-efficient chillers, energy-saving lighting systems, and use of rainwater for garden irrigation.
The interior space should make visitors feel like they have entered into an exciting atmosphere.
Within the grey hinterland of Powiśle, amongst its shopfronts and gardens, we can observe the spirit of a fragment of a city that has been growing as an organic part of the capital.
Therefore it was important to make the inside of the building an extension of the neighboring context with a touch of something completely new.
The unexpected yellows of the building raise the visitor's interest as to what else may be encountered. Here yellow isn’t just a color, but a promise of a kind of life, to which the education in this building may lead.
The architecture of the Modern Languages and Applied Linguistics building is based on lightness, with a refined framework of steel, concrete, and glass.
The building plays a game consisting of blurring the tangible boundaries of its mass and rendering superfluous the reading of a single solid volume into something more poetic.



























