
Accommodation for Seniors and Public Room
ARCHITECTS
Archiplanstudio
LEAD ARCHITECT
Jacopo Rettondini
LOCATION
San Giacomo Delle Segnate, Italy
CATEGORY
Housing
Text description provided by architect.
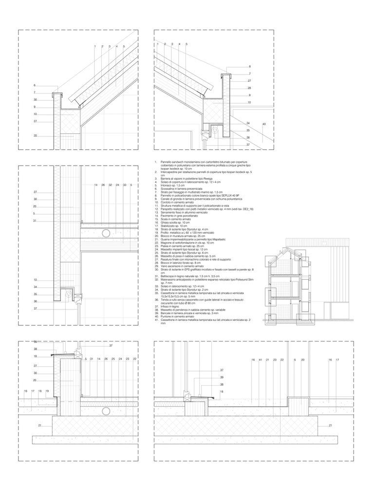
The intervention is organized in two buildings, a workshop intended for self-sufficient elderly homes while the lower and longer volume is hosting a counseling room and an archive.
The residential building consists of two fronts that relate differently, with a variation of systems, towards the landscape and the urban environment.
The public room has a wooden side that establishes a relationship with the garden and a metal front that denies the hostile side border.
The facade on the open public space defines the access hierarchies while the rear front enriches the possible dialectics with the outside:
the portions of the lower openings cut out a fragment of the countryside, while the upper portion covered in polycarbonate, is configured as a lantern which, illuminated at night, it becomes an element of orientation in the surrounding agricultural fields context.




























































