Keshav Lakshmi House
ARCHITECTS
Hiteshmistry & Associates
DESIGN TEAM
Saloni Patel, Bhavesh Gajjar
MANUFACTURERS
Hindware, Mitsubishi Electric, Asian Paints, Fabglaze Window Solutions, Ghana Teak, Ica, Indian Natural Granite, Picollo , Rotolam, Steel Case
PHOTOGRAPHS
Inclined Studio
AREA
3350 Ft²
YEAR
2022
LOCATION
Ahmedabad, India
CATEGORY
Houses
Text description provided by architect.
This site sits in a very dense and developed area of Ahmedabad with a plot size of about 1580 sft. The plot is North facing and square in shape. This was the client's old house used by the past two generations of the family.
He wanted to keep some elements of the ground floor as memory and convert the existing built-up house into a private office with a guest house, so we decided not to change the foundation and build two additional floors giving the whole built form four new elevations.
The placement of spaces leads us to plan a house that opens up to the outside view of north and west.
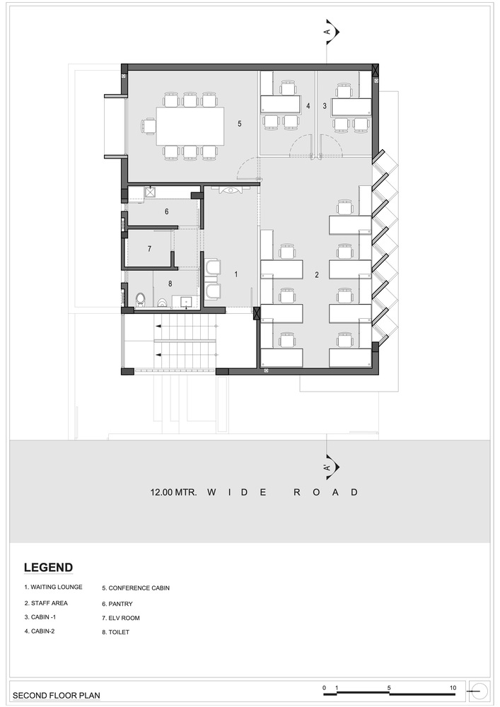
The client's profession as a charter accountant required the main cabin adjoining a small meeting /presentation space as a part of it.
Reception-waiting area with separate accounts staff needed to be easily accessible near his cabin. He needed a separate space for his two sons and the staff of ten, and the conference area was a must.
There are two separate entries - one for the guest house which is from the society lane whereas the official entry and parking are from the main road.
The rotating louvers and staircase screen on the front facade help to bring north light into the building throughout the day.
These elements featured on north help in the defining elevation that is - casted bricks made out of clay and louvers made of corten steel with minimal cut-outs.
As you enter the guest house door, you are welcomed into the drawing room and dining area, divided by a diagonal wall.
One of the most interesting and unique features of the house is the use of natural light. The light from the west direction is indirect and soft with the help of diagonal architectural fins.
Interiors play a very important part in getting a place together and making it a home. Furniture is designed and made in specialized workshops with practical requirements make up for the modern interior.
Minimum POP ceiling, while utilizing the exposed concrete slabs as an ornament works perfectly with the modern approach.
Locally procured Kotah stone in the flooring goes well with the color story of greys and neutrals in the house. Adding solid wood in wall paneling, furniture, and ceilings as and when required balances out the use of grey.
The decorative lights follow the same material palette of concrete and wood. These were specifically customized for this project, by a light designer. Similarly customized and carefully procured art pieces sit in different corners of the house, enriching the interiors.
The bedding fabrics and curtains were designed by a textile designer, fulfilling the client's specific requirements while keeping the modern interior language intact.
Adding subtle color tones and balancing those out with neutrals makes for the fabric palette. All these factors amalgamate into a minimalistic interior.





















