
Tony's Organic House
YEAR
2013
LOCATION
Shanghai, China
CATEGORY
Commercial Architecture
Text description provided by architect.
Following a successful collaboration for a multifunctional building complex at Tony’s Farm, playze has been approached by owner Tony Zhang with the idea of developing a building in the city center of Shanghai for the promotion of an organic lifestyle.
The main purpose of the building is to showcase the products of Tony’s Farm by introducing a more natural way of living to city dwellers, who may often have an obscured understanding of the origins of their food products.
The project is located on the waterfront in Lujiazui, with the iconic Pudong skyline as its backdrop. It is a conversion project for an existing building that was initially constructed as a part of the Pudong landscape master plan.
This original pavilion-like structure was built without any intended purpose or function; it had therefore never actually been used and had fallen into rather poor condition.
Substantial structural changes, namely the addition of an entire floor as well as the introduction of an additional split-level, were necessary to generate an attractive spatial sequence matching the aspirations of the client.
Much attention has been paid to the material integrity of the space.By maintaining the natural appearance of the building materials, a contrast is struck against the artificiality of the surrounding urban environment. The dominant material in the interior is locally sourced oak wood, which creates a warm and tactile experience throughout the interior.
A pixelated assemblage of oaken boxes seems to grow through the three lower floors of the building, generating a spatial continuum throughout the different levels.
The central stair has been designed as a flexible playground for different events. Modular cubes can be arranged in specific layouts to cater to various programs like presentations, exhibitions, public receptions and informal meetings.
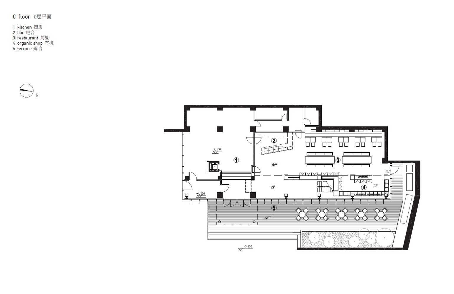
A public restaurant, private dining rooms, and an organic food store are connected both visually and physically to this central space.
The fourth floor is designed to host a more executive clientele. An open kitchen allows for show cooking, with organic ingredients on display directly in front of the patrons.Following dinner, guests may be invited for relaxation and leisure activities on the terrace, featuring a stunning view across the river to Puxi.
The existing building shell initially consisted of a conventional glass curtain wall without any measures to protect the building from heat gain through solar radiation.
In addition to the need for a shading system, the ambition to create a building envelope that reflected the novel aspirations of the client were the primary drivers for the development of a completely bespoke facade system.
The idea was to contrast the harshness of the adjacent massive glass towers with a soft and tactile skin. The resulting shading system is made of two layers of differently colored strings. The overlap of the two layers creates a moiré effect that reinforces the textile-like aesthetic of the skin.
The resulting shading system is made of two layers of differently colored strings. The overlap of the two layers creates a moiré effect that reinforces the textile-like aesthetic of the skin. The façade is comprised of a series of panels, each consisting of 46 strings.
The use of single strings instead of a continuous fabric allows the panels to twist in a controlled and specific way. The shape of the twisted panel allows for ideal sun shading conditions while simultaneously opening up views towards the river.
Groups of panels can be individually controlled in order to adapt to specific functions in different areas of the building. A layer of LED lights behind the panels enhances the three-dimensional effect of the façade during the night.
The illuminated panels act to increase the level of privacy by obscuring views from the outside in, while preserving the compelling vistas from the interior to the surrounding urban environment.























