
MOH
ARCHITECTS
Aat + Makoto Yokomizo Architects
AREA
128 M²
YEAR
2013
LOCATION
Minamiashigara, Japan
CATEGORY
Houses
Text description provided by architect.
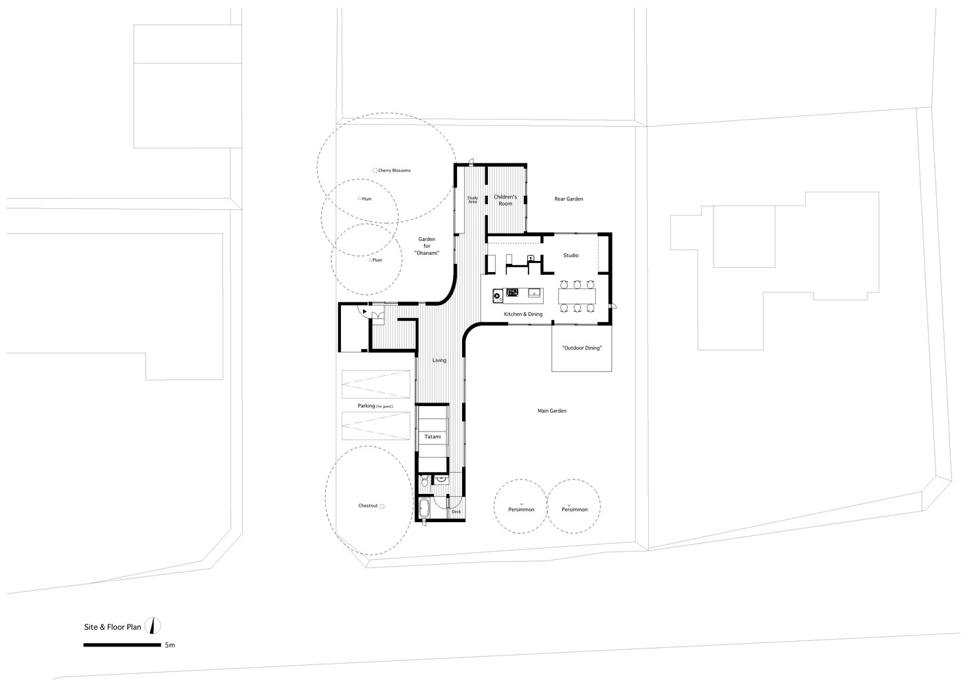
The site is located in the steep range of hills of the western part in Kanagawa Prefecture. A residential section including this site was developed and sold in lots in the 1970s.
Such a flat site is rare in this residential section. As a result of piling up the daily life image of the client considered and drawn on the value, I made a judgment to make a 1 story building.
The family of the client is one husband-and-wife + child. They refrained their apartment life in the city area at the foot of the hills, and searched for a rich green environment for a new house.
The Mind Map presented by the client was full of pleasure and joy to live near the ground under the sun light.
This site is land which had turned into a vacant lot after the sale in lots with nothing yet built.
Trees which bear flowers and fruits, such as a cherry tree which the former owner planted in the corner of the site, a plum, a chestnut, and a persimmon, were growing tall.
I tried to simultaneously design the yard which harnessed those trees and the layout plan of this house. As a result, it became a plan of a modification cross.
The client wants to connect the indoors and the outdoors and has a desire to take a dining table outdoors and have a meal.
Therefore, about the half of the internal floors, such as a kitchen, a dining room, and an atelier, became a concrete earthen floor.
The roof frame has made the loose curved surface by delicately changing the height of level small beams.





















