
co(al)-yard
co(al)-yard
ReMIX studio
DESIGN TEAM
Chen Chen, Nicola Saladino, Federico Ruberto, Alexandre Braleret, Liu Yangyang, Chen Si,
Chen Muzhi, Zhang Mi, Duan Jintong, Chen Xinxing, Chen Yuxuan, Li Xin, Rita Wang
YEAR
2019
LOCATION
Beijing, China
CATEGORY
Renovation
Text description provided by architect.
The project is located in the historic neighborhood of Xuanwumen, Beijing.
Hidden in a small quiet alley and flanked by a primary school on the Southeast side and an important Roman Catholic Church on the West side, the plot was formerly occupied by a coal factory that was decommissioned ten years ago and left abandoned ever since.
Underneath a thick coat of black dust inherited from the years of the ash-spitting furnaces, pretty much the totality of the plot area was covered, leaving just narrow gaps between the metallic roofs to cast a blade of light to the interiors.
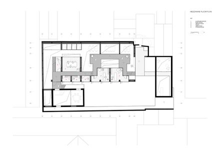
After freeing up the central yard from a metallic roof structure, three buildings with very different typologies stood around it:
on the North side a traditional pitched-roof grey-brick house guarded the entrance, as the last remain of the original hutong fabric; in the West, a warehouse shed with a long sequence of wooden trusses transformed the deep space into a crumbling basilica filled with coal; finally, at the Southern end, a red brick boxy building hid in its deep basement the noisy industrial production.
The client’s goal was to redevelop the 800sqm plot into a flexible office space that would target young and dynamic offices.
The brief included a series of functional requirements ranging from conventional small office units to open working spaces, meeting rooms, a dining area and a kitchen, but we were also asked to design the layout in a way that it could allow future tenants to host events and gatherings for large crowds.
Due to the strict preservation guidelines of Beijing historical city center, the renovation had to maintain intact the volumetry of the courtyard so our intervention focuses on a new interface with the garden and redefines the interior spaces, preserving all the columns perimetral brick walls and reconstructing the industrial pitched roof without trusses, in order to maximize the headroom.
The functions are organized as a series of boxes of various sizes piled up within the existing envelop; their different heights depend on their function and the degree of privacy required and their distribution responds to the pace of the original structure.
The “negative volumes” between the boxes provide flexible double-height spaces that can easily incorporate new future functional requirements and create an interesting rhythm of compressions and decompressions along the main axis.
The roof is carved in multiple locations to form light wells and interior gardens, spreading a diffused light throughout all the working areas and generating new views towards the surroundings.
The new glazed atriums help organize the functional areas and expand the perceived depth, multiplying it through a series of reflections.
They not only provide natural illumination and ventilation to the full depth of the building, but also work as encapsulated fragments of nature that one can contemplate while working: a tree branch cut out from a squared patch of sky, the reflection of the sun onto the marble cross of the nearby church...
Finally, a continuous dark steel ribbon meanders across the whole project to navigate through and connect across the three buildings, taking multiple configurations:
a reception entrance, a covered hallway, a mezzanine suspended in the central space or a staircase leading to the rooftop terrace. This band of steel is the physical materialization of the new circulation as well as a memory of the industrial past of the buildings.

























