Sports Complex in Bussy Saint-Georges
MANUFACTURERS
Kalwall®
ARCHITECT IN CHARGE
Martin Duplantier
LOCATION
Bussy-saint-georges, France
CATEGORY
Recreation & Training
Text description provided by architect.
Located on the edge of this suburban town, the building faces the horizon made of agricultural fields and infrastructures lines.
For Bussy, this new and growing city at the East of Greater Paris area, this sport center represents one of the major public facilities.
The rural and «fake-old» identity of the surroundings and its individual houses plays the role of contrast for the project.
Emphasizing the horizon of the fields by cutting «horizontally» the three volumes of the building is the first step of the project.
The alternation of empty and full portions develops a checkerboard of concrete and translucent elements that could be recognized day and night, from close as well as from far away.
The calm but radical architecture draws its sources from the rural vocabulary (farms, cellars) where the functions and fluxes create forms.
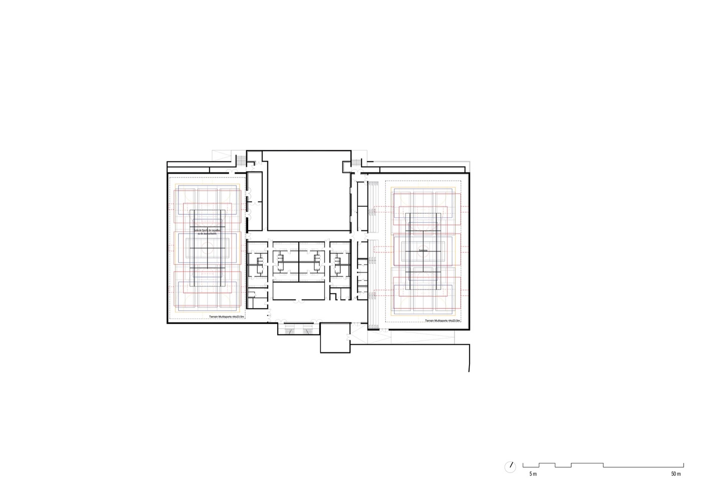
The main entrance is set in the central block on the south facade. Split in two by the horizon line, slightly elevated, it offers a clear view on the great landscape and distributes the whole complex with minimum clearance.
Outside, a whistle-shaped balcony gives view to the panorama. On the rear facade, the central block stands out and gives access to two broad concrete ramps.
Finally, the two gyms, one with galleries and the other dedicated to racket sports, are partially underground.
Their upper part (above the skyline) is translucent and offers a soft light to the users.






















