ARCHITECTS
Mas Fernandez Arquitectos
ARCHITECT IN CHARGE
Cristóbal Fernández, Francisca Ruiz, Rodrigo O´ryan
STRUCTURE
Sergio Trejo Z. – Enrique Varela M.
MANUFACTURERS
Nuprotec
YEAR
2013
LOCATION
Algarrobo, Chile
CATEGORY
Houses
Text description provided by architect.
Thinking about a second home, it is inevitable to imagine a place with special features, much more if it is facing the sea.
The Elizabeth House, as we call it for a long time in honor of his owner, who is a single 50 years old mother, reflects very well the clarity, simplicity and honesty with which, in our view, should tackle these projects.
The important thing was the location, to refuge from the wind of “Punta de Gallo” cliff, and to protect the surrounding vegetation of weeds, thorns and docks.
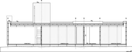
The house is based on a grid of pillars of 3.50 x 3.50 meters, that sorts well modulating beams that ends up embracing the house , leading a terrace and a small central space (where the Jacuzzi barrel is).
The walls, that are arranged inside of the structure, make enclosures whose dimensions are arranged on the module.
The interior partitions are made of white painted pine, the same wood chosen for the structure, a wood of the area and very well known by all carpenter.
So, this shelter on a cliff of the coast of the V Region of Chile has been opened for a few months and has already received visitors that are looking for a place to retire and look into the sea.
Outside, the house was treated with graphite gray primers that ensure low maintenance over time and that strengthen the form of a container.





























