
Abode at Great Kneighton Housing
ARCHITECTS
Proctor And Matthews Architects
LEAD ARCHITECTS
Proctor & Matthews Architects
MANUFACTURERS
Olson, Velux Group, Velfac, Argonaut, Bentley Systems, Hanson Jetfloor, Ibstock, Marley Alutech, Mitek, Rundum Meir, Sandtoft, Sarnafil
MAIN CONTRACTOR
Countryside Properties
SUSTAINABILITY CONSULTANT
Environ
PLANNING CONSULTANT
Sw Planning
LANDSCAPE CONSULTANT
Townshend Landscape Architects
MECHANICAL & ELECTRICAL CONSULTANT
Kaizenge
STRUCTURAL ENGINEER
Urs
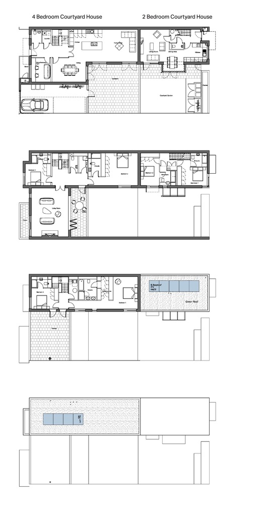
FOUR BEDROOM COURTYARD HOME
451.4 M2
TWO BEDROOM COURTYARD MEWS
165.0 M2
TERRACED VILLA
244.3 M2
AREA
861 M²
YEAR
2019
LOCATION
Cambridge, United Kingdom
CATEGORY
Housing
Text description provided by architect.
The second phase of Abode, an award-winning residential development designed by Proctor and Matthews Architects, is now complete. Part of the new village of Great Kneighton, it forms a significant part of the Cambridge southern fringe expansion.
Designed for Countryside Properties, an additional 136 dwellings form Phase II of Abode, completing a neighbourhood of 442 homes in all.
A landmark project for high-quality housing of this scale, Abode is recognised as a new benchmark for residential development, and an exemplar for edge of city and town expansion.
Abode is a mixed-tenure development that includes 40% of all homes as affordable, allocated tenure-blind, ensuring quality and parity across the entire development.
Designed to have multi-generational appeal, the site introduces a wide variety of unique new housing typologies, which have attracted a broad range of buyers from single-person households to couples and families.
Both the masterplan and the detailed design of the dwellings reflect the context of Cambridge with the public realm and built form reflecting both the city’s unique collegiate and urban structure, as well as its surrounding Fenland villages.
Phase II of Abode further develops the contemporary courtyard and mews house types that proved so successful in Phase I. Clusters of different typologies have been combined together to deliver increased densities without feeling over-developed.
With an urban streetscape linking Abode to the edge of the city, a combination of four-bedroom courtyard homes, smaller two-bedroom courtyard mews houses and terraced villas in back to back formations creates a mixed residential population.
The homes do not have traditional front and rear gardens that usually define the landscape, instead outdoor space is provided by substantial roof terraces at differing levels, enabling greater and easier access to outdoor space.
As the development progresses towards the country park edge, three large unique courtyard typologies form two mews streets and a defined edge to the new development.
Abode’s location means that residents can reach the centre of Cambridge by bike, or on foot in under 20 minutes.
To encourage walking and cycling within the neighbourhood, key communal amenities are situated close together, including a primary school that is now fully occupied, shops and healthcare facilities.
Level access to streets, communal squares and residential buildings ensure that the quarter is both accessible and inclusive.





















