Pau Brasil Residence
YEAR
2019
LOCATION
São Paulo, Brazil
CATEGORY
Houses
Text description provided by architect.
The Project is located in an essentially residential neighborhood called city Boaçava in São Paulo city.
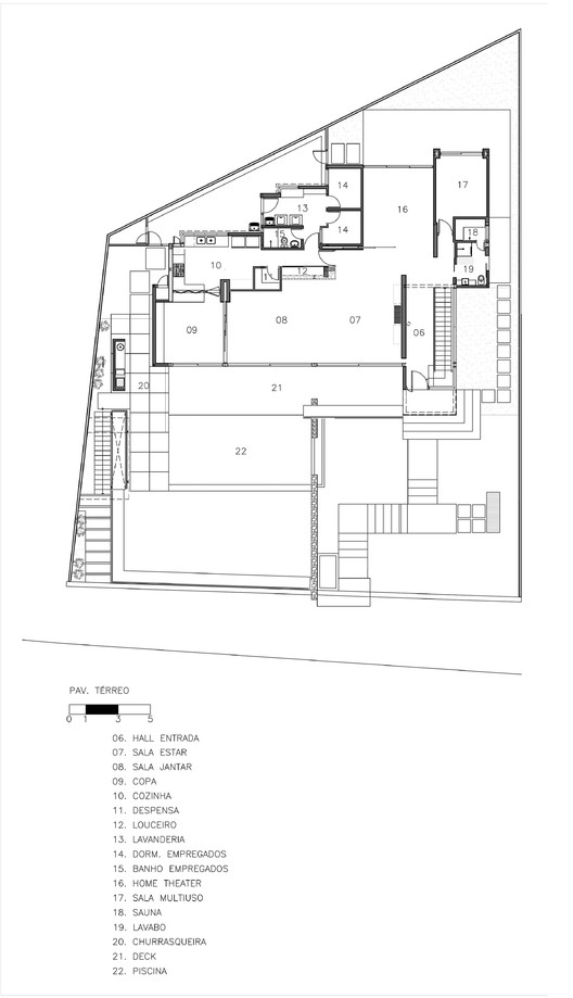
The most important aspect of this Project is the relation between the inner and the outside spaces. The garden and the terrace are spatial continuations of the living and dining rooms.
The garage is located on the street level and has a Green roof on the top integrated with the ground floor.
The bedrooms and family room are situated in the first floor and have a terrace with a view of the swimming pool and the treetops.
The steel structure and the glass walls create a light insertion in the landscape with the stone wall to make a natural complement.
















